Elected Officials
Courts
Departments
Initiatives
Open Government
About
Login / Register
Home
/
Property & Tax Records
/
Property Records
/
Property & Tax Search
/
Parcel Profile
/
Print View
Search for Another Parcel
Parcel Profile
Historical Card
Sketches
Photos
Tax Map
Taxes
Print View
Print This Page
Address: 1117 W 21 ST
Parcel: 19060034010900
Parcel Profile
Address
1117 | W | 21 | ST
Street Status
PAVED | SIDEWALK
School District
CITY OF ERIE SCHOOL
Acreage
0.1194
Classification
R
Land Use Code
SINGLE FAMILY
Legal Description
1117 W 21 ST 40X130
Square Feet
1246
Topo
LEVEL
Utility
ALL PUBLIC
Zoning
Please contact your municipal zoning officer
Deed Book
2017
Deed Page
019007
2026 Tax Values
Land Value / Taxable
11,100 / 11,100.00
Building Value / Taxable
56,020 / 56,020.00
Total Value / Taxable
67,120 / 67,120.00
Clean & Green
Inactive
Homestead Status
Active
Farmstead Status
Inactive
Lerta Amount
0
Lerta Expiration Year
0
Residential Data
Card 1
Style
OLD STYLE
Basement
FULL
Year Built
1887
Exterior Wall
ALUMINUM/VINYL
Total Living Area
1246
Full Baths
1
Half Baths
0
Fuel Type
GAS
Heating
CENTRAL A/C
Heating System
FORCED AIR
Stories
2.0
Total Bedrooms
3
Total Family Rooms
0
Total Rooms
5
Fireplaces
0
Other Buildings & Yards
Description
Built
Width
Length
Area
FRAME OR CB DETACHED GARAGE
1940
13
22
286
Sales History
Sale Date
Type
Price
Book / Page
Other Info
9/1/2017
LAND & BUILDING
54500
2017 / 019007
WARRANTY/SURVIVORSHIP DEED
4/4/2005
LAND & BUILDING
49000
1222 / 0605
WARRANTY/SURVIVORSHIP DEED
3/13/1995
0
0375 / 1702
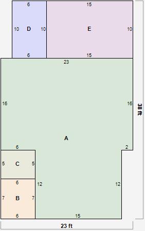
Parcel Sketches
Residential Card 1
A
MAIN
548 square feet
B
OFP OPEN FRAME PORCH
42 square feet
C
EFP ENCL FRAME PORCH
30 square feet
D
EFP ENCL FRAME PORCH
60 square feet
E
1S FR ONE STORY FRAME
150 square feet
Parcel Images
Please note:
this tab is for informational purposes only and may not show all delinquencies, see the Taxes tab for more accurate delinquent taxes due.