Elected Officials
Courts
Departments
Initiatives
Open Government
About
Login / Register
Home
/
Property & Tax Records
/
Property Records
/
Property & Tax Search
/
Parcel Profile
/
Print View
Search for Another Parcel
Parcel Profile
Historical Card
Sketches
Photos
Tax Map
Taxes
Print View
Print This Page
Address: 1106 W 21 ST
Parcel: 19060034023700
Parcel Profile
Address
1106 | W | 21 | ST
Street Status
PAVED | SIDEWALK
School District
CITY OF ERIE SCHOOL
Acreage
0.0348
Classification
R
Land Use Code
SINGLE FAMILY
Legal Description
1106 W 21 ST 35X43.33
Square Feet
710
Topo
LEVEL
Utility
ALL PUBLIC
Zoning
Please contact your municipal zoning officer
Deed Book
0383
Deed Page
1625
2025 Tax Values
Land Value / Taxable
8,600 / 8,600.00
Building Value / Taxable
41,680 / 41,680.00
Total Value / Taxable
50,280 / 50,280.00
Clean & Green
Inactive
Homestead Status
Active
Farmstead Status
Inactive
Lerta Amount
0
Lerta Expiration Year
0
Residential Data
Card 1
Style
BUNGALOW
Basement
FULL
Year Built
1920
Exterior Wall
STUCCO
Total Living Area
710
Full Baths
1
Half Baths
0
Fuel Type
GAS
Heating
CENTRAL
Heating System
FORCED AIR
Stories
1.0
Total Bedrooms
2
Total Family Rooms
1
Total Rooms
5
Fireplaces
0
Other Buildings & Yards
No OBY Data Found
Sales History
Sale Date
Type
Price
Book / Page
Other Info
5/16/1995
0
0383 / 1625
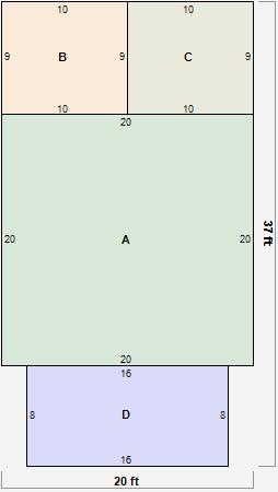
Parcel Sketches
Residential Card 1
A
MAIN
400 square feet
B
UNFIN BSMT BASEMENT UNFINISHED 1S FR ONE STORY FRAME
90 square feet
C
OFP OPEN FRAME PORCH
90 square feet
D
EFP ENCL FRAME PORCH
128 square feet
Parcel Images