Elected Officials
Courts
Departments
Initiatives
Open Government
About
Login / Register
Home
/
Property & Tax Records
/
Property Records
/
Property & Tax Search
/
Parcel Profile
/
Print View
Search for Another Parcel
Parcel Profile
Historical Card
Sketches
Photos
Tax Map
Taxes
Print View
Print This Page
Address: 1128 BROWN AVE
Parcel: 19060035012000
Parcel Profile
Address
1128 | BROWN | AVE
Street Status
PAVED | SIDEWALK
School District
CITY OF ERIE SCHOOL
Acreage
0.0440
Classification
R
Land Use Code
SINGLE FAMILY
Legal Description
1128 BROWN AVE 36 X 53.24
Square Feet
1404
Topo
LEVEL
Utility
ALL PUBLIC
Zoning
Please contact your municipal zoning officer
Deed Book
1377
Deed Page
0240
2026 Tax Values
Land Value / Taxable
8,900 / 8,900.00
Building Value / Taxable
50,900 / 50,900.00
Total Value / Taxable
59,800 / 59,800.00
Clean & Green
Inactive
Homestead Status
Active
Farmstead Status
Inactive
Lerta Amount
0
Lerta Expiration Year
0
Residential Data
Card 1
Style
OLD STYLE
Basement
FULL
Year Built
1914
Exterior Wall
BRICK
Total Living Area
1404
Full Baths
1
Half Baths
0
Fuel Type
GAS
Heating
CENTRAL
Heating System
FORCED AIR
Stories
2.0
Total Bedrooms
3
Total Family Rooms
0
Total Rooms
6
Fireplaces
0
Other Buildings & Yards
No OBY Data Found
Sales History
Sale Date
Type
Price
Book / Page
Other Info
11/17/2006
LAND & BUILDING
65000
1377 / 0240
SPECIAL WARRANTY DEED
8/17/2001
LAND & BUILDING
39900
802 / 234
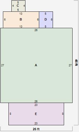
Parcel Sketches
Residential Card 1
A
MAIN
702 square feet
B
EFP ENCL FRAME PORCH
78 square feet
C
OFP OPEN FRAME PORCH
20 square feet
D
FR UT FRAME UTILITY BUILDING
30 square feet
E
UNFIN BSMT BASEMENT UNFINISHED OMP OPEN MASONRY PORCH
160 square feet
Parcel Images
Please note:
this tab is for informational purposes only and may not show all delinquencies, see the Taxes tab for more accurate delinquent taxes due.