Elected Officials
Courts
Departments
Initiatives
Open Government
About
Login / Register
Home
/
Property & Tax Records
/
Property Records
/
Property & Tax Search
/
Parcel Profile
/
Print View
Search for Another Parcel
Parcel Profile
Historical Card
Sketches
Photos
Tax Map
Taxes
Print View
Print This Page
Address: 1113 W 22 ST
Parcel: 19060035020800
Parcel Profile
Address
1113 | W | 22 | ST
Street Status
PAVED | SIDEWALK
School District
CITY OF ERIE SCHOOL
Acreage
0.1220
Classification
R
Land Use Code
TWO FAMILY
Legal Description
1113 W 22 ST 40.88X130
Square Feet
1948
Topo
ABOVE STREET
Utility
ALL PUBLIC
Zoning
Please contact your municipal zoning officer
Deed Book
2019
Deed Page
008282
2026 Tax Values
Land Value / Taxable
11,200 / 11,200.00
Building Value / Taxable
37,910 / 37,910.00
Total Value / Taxable
49,110 / 49,110.00
Clean & Green
Inactive
Homestead Status
Inactive
Farmstead Status
Inactive
Lerta Amount
0
Lerta Expiration Year
0
Residential Data
Card 1
Style
CONVENTIONAL
Basement
FULL
Year Built
1887
Exterior Wall
COMPOSITION
Total Living Area
1948
Full Baths
2
Half Baths
0
Fuel Type
GAS
Heating
CENTRAL
Heating System
FORCED AIR
Stories
2.0
Total Bedrooms
4
Total Family Rooms
0
Total Rooms
10
Fireplaces
0
Other Buildings & Yards
No OBY Data Found
Sales History
Sale Date
Type
Price
Book / Page
Other Info
5/8/2019
LAND & BUILDING
0
2019 / 008282
DEED
2/27/1985
0
1570 / 0057
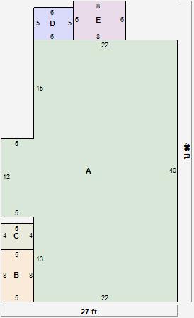
Parcel Sketches
Residential Card 1
A
MAIN
940 square feet
B
OFP OPEN FRAME PORCH
40 square feet
C
1S FR ONE STORY FRAME
20 square feet
D
WDDCK WOOD DECKS
30 square feet
E
1S FR ONE STORY FRAME
48 square feet
Parcel Images
Please note:
this tab is for informational purposes only and may not show all delinquencies, see the Taxes tab for more accurate delinquent taxes due.