Elected Officials
Courts
Departments
Initiatives
Open Government
About
Login / Register
Home
/
Property & Tax Records
/
Property Records
/
Property & Tax Search
/
Parcel Profile
/
Print View
Search for Another Parcel
Parcel Profile
Historical Card
Sketches
Photos
Tax Map
Taxes
Print View
Print This Page
Address: 2801 RASPBERRY ST
Parcel: 19060037012100
Parcel Profile
Address
2801 | RASPBERRY | ST
Street Status
PAVED | SIDEWALK
School District
CITY OF ERIE SCHOOL
Acreage
0.0826
Classification
R
Land Use Code
SINGLE FAMILY
Legal Description
2801 RASPBERRY ST 35 X 102.75 IRR
Square Feet
1789
Topo
LEVEL
Utility
ALL PUBLIC
Zoning
Please contact your municipal zoning officer
Deed Book
2017
Deed Page
011712
2026 Tax Values
Land Value / Taxable
14,300 / 14,300.00
Building Value / Taxable
48,300 / 48,300.00
Total Value / Taxable
62,600 / 62,600.00
Clean & Green
Inactive
Homestead Status
Active
Farmstead Status
Inactive
Lerta Amount
0
Lerta Expiration Year
0
Residential Data
Card 1
Style
OLD STYLE
Basement
FULL
Year Built
1892
Exterior Wall
ALUMINUM/VINYL
Total Living Area
1789
Full Baths
1
Half Baths
1
Fuel Type
GAS
Heating
CENTRAL
Heating System
HOT WATER
Stories
2.0
Total Bedrooms
4
Total Family Rooms
0
Total Rooms
11
Fireplaces
0
Other Buildings & Yards
No OBY Data Found
Sales History
Sale Date
Type
Price
Book / Page
Other Info
6/8/2017
LAND & BUILDING
40000
2017 / 011712
DEED
2/3/2012
LAND & BUILDING
24000
2012 / 003080
DEED
12/2/2011
LAND & BUILDING
0
2011 / 029004
DEED
6/27/2011
LAND & BUILDING
0
2011 / 014354
SHERIFF'S DED
10/1/2001
0
0813 / 1427
3/1/1999
LAND & BUILDING
69000
620 / 1657
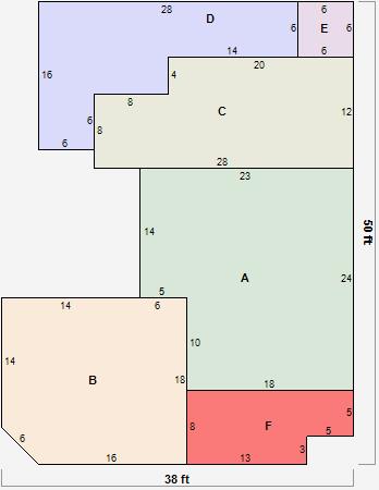
Parcel Sketches
Residential Card 1
A
MAIN
502 square feet
B
1S FR ONE STORY FRAME
352 square feet
C
1S FR ONE STORY FRAME
304 square feet
D
WDDCK WOOD DECKS
260 square feet
E
EFP ENCL FRAME PORCH
36 square feet
F
1S FR ONE STORY FRAME
129 square feet
Parcel Images
Please note:
this tab is for informational purposes only and may not show all delinquencies, see the Taxes tab for more accurate delinquent taxes due.