Elected Officials
Courts
Departments
Initiatives
Open Government
About
Login / Register
Home
/
Property & Tax Records
/
Property Records
/
Property & Tax Search
/
Parcel Profile
/
Print View
Search for Another Parcel
Parcel Profile
Historical Card
Sketches
Photos
Tax Map
Taxes
Print View
Print This Page
Address: 1022 W 29 ST
Parcel: 19060037013700
Parcel Profile
Address
1022 | W | 29 | ST
Street Status
PAVED | SIDEWALK
School District
CITY OF ERIE SCHOOL
Acreage
0.1414
Classification
R
Land Use Code
SINGLE FAMILY
Legal Description
1022 W 29 ST IRR
Square Feet
1790
Topo
LEVEL
Utility
ALL PUBLIC
Zoning
Please contact your municipal zoning officer
Deed Book
2024
Deed Page
011564
2026 Tax Values
Land Value / Taxable
18,100 / 18,100.00
Building Value / Taxable
69,760 / 69,760.00
Total Value / Taxable
87,860 / 87,860.00
Clean & Green
Inactive
Homestead Status
Active
Farmstead Status
Inactive
Lerta Amount
0
Lerta Expiration Year
0
Residential Data
Card 1
Style
OLD STYLE
Basement
FULL
Year Built
1918
Exterior Wall
BRICK
Total Living Area
1790
Full Baths
1
Half Baths
0
Fuel Type
GAS
Heating
CENTRAL A/C
Heating System
FORCED AIR
Stories
1.0
Total Bedrooms
4
Total Family Rooms
0
Total Rooms
8
Fireplaces
0
Other Buildings & Yards
No OBY Data Found
Sales History
Sale Date
Type
Price
Book / Page
Other Info
7/26/2024
LAND & BUILDING
180000
2024 / 011564
SPECIAL WARRANTY DEED
4/14/2022
LAND & BUILDING
43000
2022 / 007970
SPECIAL WARRANTY DEED
11/12/2021
LAND & BUILDING
4300
2021 / 030298
SHERIFF'S DED
7/2/2003
LAND & BUILDING
84000
1031 / 572
DEED
7/1/1992
0
0219 / 2187
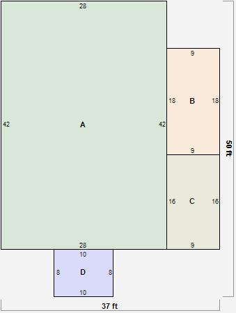
Parcel Sketches
Residential Card 1
A
MAIN
1176 square feet
B
MA_PT CONC/MAS PATIO
162 square feet
C
1SMAS MASONRY
144 square feet
D
OFP OPEN FRAME PORCH
80 square feet
Parcel Images
Please note:
this tab is for informational purposes only and may not show all delinquencies, see the Taxes tab for more accurate delinquent taxes due.