Elected Officials
Courts
Departments
Initiatives
Open Government
About
Login / Register
Home
/
Property & Tax Records
/
Property Records
/
Property & Tax Search
/
Parcel Profile
/
Print View
Search for Another Parcel
Parcel Profile
Historical Card
Sketches
Photos
Tax Map
Taxes
Print View
Print This Page
Address: 2726 CASCADE ST
Parcel: 19060037020000
Parcel Profile
Address
2726 | CASCADE | ST
Street Status
PAVED | SIDEWALK
School District
CITY OF ERIE SCHOOL
Acreage
0.1280
Classification
R
Land Use Code
SINGLE FAMILY
Legal Description
2726 CASCADE ST LOT 20 & C 35 X 160 | REF MB 1-219
Square Feet
1510
Topo
LEVEL
Utility
ALL PUBLIC
Zoning
Please contact your municipal zoning officer
Deed Book
1459
Deed Page
0947
2026 Tax Values
Land Value / Taxable
17,600 / 17,600.00
Building Value / Taxable
68,440 / 68,440.00
Total Value / Taxable
86,040 / 86,040.00
Clean & Green
Inactive
Homestead Status
Active
Farmstead Status
Inactive
Lerta Amount
0
Lerta Expiration Year
0
Residential Data
Card 1
Style
OLD STYLE
Basement
FULL
Year Built
1910
Exterior Wall
ALUMINUM/VINYL
Total Living Area
1510
Full Baths
1
Half Baths
0
Fuel Type
GAS
Heating
CENTRAL
Heating System
FORCED AIR
Stories
2.0
Total Bedrooms
3
Total Family Rooms
0
Total Rooms
6
Fireplaces
0
Other Buildings & Yards
Description
Built
Width
Length
Area
REINFORCED CONCRETE POOL
1994
14
26
364
Sales History
Sale Date
Type
Price
Book / Page
Other Info
11/9/2007
LAND & BUILDING
0
1459 / 0947
QUIT CLAIM DEED
6/11/1987
0
0014 / 1526
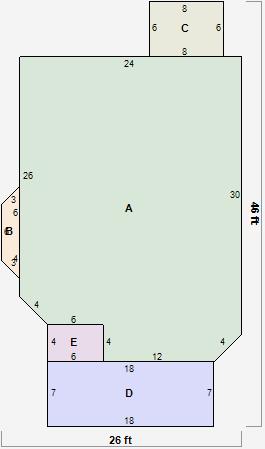
Parcel Sketches
Residential Card 1
A
MAIN
747 square feet
B
UNFIN BSMT BASEMENT UNFINISHED FRBAY FRAME BAY
16 square feet
C
EFP ENCL FRAME PORCH
48 square feet
D
OFP OPEN FRAME PORCH
126 square feet
E
EFP ENCL FRAME PORCH
24 square feet
Parcel Images
Please note:
this tab is for informational purposes only and may not show all delinquencies, see the Taxes tab for more accurate delinquent taxes due.