Elected Officials
Courts
Departments
Initiatives
Open Government
About
Login / Register
Home
/
Property & Tax Records
/
Property Records
/
Property & Tax Search
/
Parcel Profile
/
Print View
Search for Another Parcel
Parcel Profile
Historical Card
Sketches
Photos
Tax Map
Taxes
Print View
Print This Page
Address: 1018 W 28 ST
Parcel: 19060037023800
Parcel Profile
Address
1018 | W | 28 | ST
Street Status
PAVED | SIDEWALK
School District
CITY OF ERIE SCHOOL
Acreage
0.1240
Classification
R
Land Use Code
SINGLE FAMILY
Legal Description
1018 W 28 ST 40 X 135
Square Feet
1404
Topo
LEVEL
Utility
ALL PUBLIC
Zoning
Please contact your municipal zoning officer
Deed Book
2024
Deed Page
008006
2026 Tax Values
Land Value / Taxable
17,500 / 17,500.00
Building Value / Taxable
65,350 / 65,350.00
Total Value / Taxable
82,850 / 82,850.00
Clean & Green
Inactive
Homestead Status
Inactive
Farmstead Status
Inactive
Lerta Amount
0.00
Lerta Expiration Year
2015
Residential Data
Card 1
Style
OLD STYLE
Basement
FULL
Year Built
1907
Exterior Wall
COMPOSITION
Total Living Area
1404
Full Baths
2
Half Baths
0
Fuel Type
GAS
Heating
CENTRAL
Heating System
FORCED AIR
Stories
2.0
Total Bedrooms
3
Total Family Rooms
0
Total Rooms
7
Fireplaces
0
Other Buildings & Yards
No OBY Data Found
Sales History
Sale Date
Type
Price
Book / Page
Other Info
5/29/2024
LAND & BUILDING
125000
2024 / 008006
SPECIAL WARRANTY DEED
8/23/2016
LAND & BUILDING
32000
2016 / 018189
SPECIAL WARRANTY DEED
5/13/2016
LAND & BUILDING
3396
2016 / 009546
SHERIFF'S DED
12/12/2005
LAND & BUILDING
72000
1293 / 0512
WARRANTY/SURVIVORSHIP DEED
1/18/2005
LAND & BUILDING
35350
1204 / 1346
SPECIAL WARRANTY DEED
5/25/1993
0
0270 / 1526
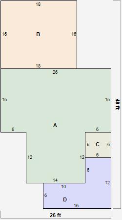
Parcel Sketches
Residential Card 1
A
MAIN
558 square feet
B
1S FR ONE STORY FRAME
288 square feet
C
EFP ENCL FRAME PORCH
36 square feet
D
OFP OPEN FRAME PORCH
132 square feet
Parcel Images
Please note:
this tab is for informational purposes only and may not show all delinquencies, see the Taxes tab for more accurate delinquent taxes due.