Elected Officials
Courts
Departments
Initiatives
Open Government
About
Login / Register
Home
/
Property & Tax Records
/
Property Records
/
Property & Tax Search
/
Parcel Profile
/
Print View
Search for Another Parcel
Parcel Profile
Historical Card
Sketches
Photos
Tax Map
Taxes
Print View
Print This Page
Address: 1021 W 26 ST
Parcel: 19060037030800
Parcel Profile
Address
1021 | W | 26 | ST
Street Status
PAVED | SIDEWALK
School District
CITY OF ERIE SCHOOL
Acreage
0.1193
Classification
R
Land Use Code
SINGLE FAMILY
Legal Description
1021 W 26 ST IRREG
Square Feet
1576
Topo
LEVEL
Utility
ALL PUBLIC
Zoning
Please contact your municipal zoning officer
Deed Book
2019
Deed Page
014423
2026 Tax Values
Land Value / Taxable
17,300 / 17,300.00
Building Value / Taxable
71,700 / 71,700.00
Total Value / Taxable
89,000 / 89,000.00
Clean & Green
Inactive
Homestead Status
Inactive
Farmstead Status
Inactive
Lerta Amount
0
Lerta Expiration Year
0
Residential Data
Card 1
Style
OLD STYLE
Basement
FULL
Year Built
1915
Exterior Wall
BRICK
Total Living Area
1576
Full Baths
1
Half Baths
0
Fuel Type
GAS
Heating
CENTRAL
Heating System
FORCED AIR
Stories
2.0
Total Bedrooms
4
Total Family Rooms
0
Total Rooms
8
Fireplaces
1
Other Buildings & Yards
Description
Built
Width
Length
Area
FRAME OR CB DETACHED GARAGE
2002
12
24
288
Sales History
Sale Date
Type
Price
Book / Page
Other Info
7/25/2019
LAND & BUILDING
71500
2019 / 014423
SPECIAL WARRANTY DEED
9/15/1992
0
0230 / 0864
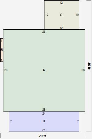
Parcel Sketches
Residential Card 1
A
MAIN
784 square feet
B
UNFIN BSMT BASEMENT UNFINISHED MABAY MASONRY BAY
8 square feet
C
OFP OPEN FRAME PORCH OFP OPEN FRAME PORCH
120 square feet
D
OMP OPEN MASONRY PORCH
168 square feet
Parcel Images
Please note:
this tab is for informational purposes only and may not show all delinquencies, see the Taxes tab for more accurate delinquent taxes due.