Elected Officials
Courts
Departments
Initiatives
Open Government
About
Login / Register
Home
/
Property & Tax Records
/
Property Records
/
Property & Tax Search
/
Parcel Profile
/
Print View
Search for Another Parcel
Parcel Profile
Historical Card
Sketches
Photos
Tax Map
Taxes
Print View
Print This Page
Address: 3015 RASPBERRY ST
Parcel: 19060038022700
Parcel Profile
Address
3015 | RASPBERRY | ST
Street Status
PAVED | SIDEWALK
School District
CITY OF ERIE SCHOOL
Acreage
0.0757
Classification
R
Land Use Code
SINGLE FAMILY
Legal Description
3015 RASPBERRY ST 35X94.23
Square Feet
1344
Topo
LEVEL
Utility
ALL PUBLIC
Zoning
Please contact your municipal zoning officer
Deed Book
2024
Deed Page
018396
2026 Tax Values
Land Value / Taxable
15,600 / 15,600.00
Building Value / Taxable
61,000 / 61,000.00
Total Value / Taxable
76,600 / 76,600.00
Clean & Green
Inactive
Homestead Status
Active
Farmstead Status
Inactive
Lerta Amount
0
Lerta Expiration Year
0
Residential Data
Card 1
Style
OLD STYLE
Basement
FULL
Year Built
1915
Exterior Wall
BRICK
Total Living Area
1344
Full Baths
1
Half Baths
0
Fuel Type
GAS
Heating
CENTRAL A/C
Heating System
FORCED AIR
Stories
2.0
Total Bedrooms
3
Total Family Rooms
0
Total Rooms
6
Fireplaces
0
Other Buildings & Yards
Description
Built
Width
Length
Area
FRAME OR CB DETACHED GARAGE
1940
13
22
286
Sales History
Sale Date
Type
Price
Book / Page
Other Info
11/6/2024
LAND & BUILDING
75000
2024 / 018396
SPECIAL WARRANTY DEED
12/6/2016
LAND & BUILDING
69900
2016 / 026579
SPECIAL WARRANTY DEED
11/19/1993
0
0304 / 1334
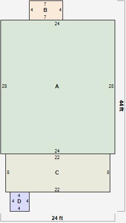
Parcel Sketches
Residential Card 1
A
MAIN
672 square feet
B
EFP ENCL FRAME PORCH
28 square feet
C
OMP OPEN MASONRY PORCH
176 square feet
D
MA STOOP/TERR MAS STOOP
16 square feet
Parcel Images
Please note:
this tab is for informational purposes only and may not show all delinquencies, see the Taxes tab for more accurate delinquent taxes due.