Elected Officials
Courts
Departments
Initiatives
Open Government
About
Login / Register
Home
/
Property & Tax Records
/
Property Records
/
Property & Tax Search
/
Parcel Profile
/
Print View
Search for Another Parcel
Parcel Profile
Historical Card
Sketches
Photos
Tax Map
Taxes
Print View
Print This Page
Address: 2816 PLUM ST
Parcel: 19060039010200
Parcel Profile
Address
2816 | PLUM | ST
Street Status
PAVED | SIDEWALK
School District
CITY OF ERIE SCHOOL
Acreage
0.1010
Classification
R
Land Use Code
SINGLE FAMILY
Legal Description
2816 PLUM ST 40X110
Square Feet
1956
Topo
LEVEL
Utility
ALL PUBLIC
Zoning
Please contact your municipal zoning officer
Deed Book
2020
Deed Page
025555
2026 Tax Values
Land Value / Taxable
16,600 / 16,600.00
Building Value / Taxable
68,100 / 68,100.00
Total Value / Taxable
84,700 / 84,700.00
Clean & Green
Inactive
Homestead Status
Active
Farmstead Status
Inactive
Lerta Amount
0
Lerta Expiration Year
0
Residential Data
Card 1
Style
OLD STYLE
Basement
FULL
Year Built
1907
Exterior Wall
ALUMINUM/VINYL
Total Living Area
1956
Full Baths
1
Half Baths
1
Fuel Type
GAS
Heating
CENTRAL
Heating System
FORCED AIR
Stories
2.0
Total Bedrooms
4
Total Family Rooms
0
Total Rooms
7
Fireplaces
0
Other Buildings & Yards
No OBY Data Found
Sales History
Sale Date
Type
Price
Book / Page
Other Info
11/25/2020
LAND & BUILDING
89900
2020 / 025555
SPECIAL WARRANTY DEED
8/16/2007
LAND & BUILDING
80000
1439 / 2270
WARRANTY/SURVIVORSHIP DEED
1/10/2002
LAND & BUILDING
0
842 / 1247
AFFIDAVIT
5/13/1999
0
0636 / 0012
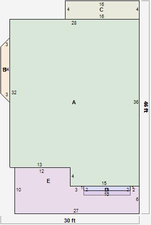
Parcel Sketches
Residential Card 1
A
MAIN
956 square feet
B
FRBAY FRAME BAY
24 square feet
C
EFP ENCL FRAME PORCH
64 square feet
D
FRBAY FRAME BAY
20 square feet
E
EFP ENCL FRAME PORCH
200 square feet
Parcel Images
Please note:
this tab is for informational purposes only and may not show all delinquencies, see the Taxes tab for more accurate delinquent taxes due.