Elected Officials
Courts
Departments
Initiatives
Open Government
About
Login / Register
Home
/
Property & Tax Records
/
Property Records
/
Property & Tax Search
/
Parcel Profile
/
Print View
Search for Another Parcel
Parcel Profile
Historical Card
Sketches
Photos
Tax Map
Taxes
Print View
Print This Page
Address: 917 W 28 ST
Parcel: 19060039010800
Parcel Profile
Address
917 | W | 28 | ST
Street Status
PAVED | SIDEWALK
School District
CITY OF ERIE SCHOOL
Acreage
0.1240
Classification
E
Land Use Code
EXEMPT SERVICE CONNECTED (VETERANS)
Legal Description
917 W 28 ST 40X135 BL40X45
Square Feet
2008
Topo
LEVEL
Utility
ALL PUBLIC
Zoning
Please contact your municipal zoning officer
Deed Book
0663
Deed Page
0991
2026 Tax Values
Land Value / Taxable
17,500 / 17,500.00
Building Value / Taxable
56,500 / 56,500.00
Total Value / Taxable
74,000 / 74,000.00
Clean & Green
Inactive
Homestead Status
Inactive
Farmstead Status
Inactive
Lerta Amount
0.00
Lerta Expiration Year
2008
Residential Data
Card 1
Style
OLD STYLE
Basement
FULL
Year Built
1897
Exterior Wall
ALUMINUM/VINYL
Total Living Area
2008
Full Baths
2
Half Baths
0
Fuel Type
GAS
Heating
CENTRAL
Heating System
FORCED AIR
Stories
2.0
Total Bedrooms
4
Total Family Rooms
0
Total Rooms
10
Fireplaces
0
Other Buildings & Yards
Description
Built
Width
Length
Area
FRAME OR CB DETACHED GARAGE
2003
24
32
768
CANOPY, ROOF/SLAB
2003
10
24
240
Sales History
Sale Date
Type
Price
Book / Page
Other Info
9/21/1999
0
0663 / 0991
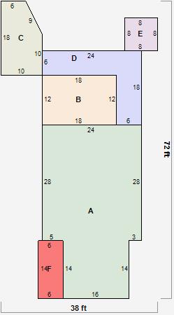
Parcel Sketches
Residential Card 1
A
MAIN
896 square feet
B
1S FR ONE STORY FRAME
216 square feet
C
WDDCK WOOD DECKS
164 square feet
D
EFP ENCL FRAME PORCH
216 square feet
E
WDDCK WOOD DECKS
64 square feet
F
OFP OPEN FRAME PORCH
84 square feet
Parcel Images
Please note:
this tab is for informational purposes only and may not show all delinquencies, see the Taxes tab for more accurate delinquent taxes due.