Elected Officials
Courts
Departments
Initiatives
Open Government
About
Login / Register
Home
/
Property & Tax Records
/
Property Records
/
Property & Tax Search
/
Parcel Profile
/
Print View
Search for Another Parcel
Parcel Profile
Historical Card
Sketches
Photos
Tax Map
Taxes
Print View
Print This Page
Address: 914 W 29 ST
Parcel: 19060039013500
Parcel Profile
Address
914 | W | 29 | ST
Street Status
PAVED | SIDEWALK
School District
CITY OF ERIE SCHOOL
Acreage
0.1240
Classification
R
Land Use Code
SINGLE FAMILY
Legal Description
914 W 29 ST 40 X 135
Square Feet
1160
Topo
LEVEL
Utility
ALL PUBLIC
Zoning
Please contact your municipal zoning officer
Deed Book
2021
Deed Page
031710
2025 Tax Values
Land Value / Taxable
17,500 / 17,500.00
Building Value / Taxable
53,640 / 53,640.00
Total Value / Taxable
71,140 / 71,140.00
Clean & Green
Inactive
Homestead Status
Active
Farmstead Status
Inactive
Lerta Amount
0
Lerta Expiration Year
0
Residential Data
Card 1
Style
OLD STYLE
Basement
FULL
Year Built
1912
Exterior Wall
ALUMINUM/VINYL
Total Living Area
1160
Full Baths
1
Half Baths
0
Fuel Type
GAS
Heating
CENTRAL
Heating System
FORCED AIR
Stories
2.0
Total Bedrooms
3
Total Family Rooms
0
Total Rooms
6
Fireplaces
0
Other Buildings & Yards
Description
Built
Width
Length
Area
FRAME OR CB DETACHED GARAGE
1955
16
24
384
Sales History
Sale Date
Type
Price
Book / Page
Other Info
11/30/2021
LAND & BUILDING
89900
2021 / 031710
SPECIAL WARRANTY DEED
6/28/2007
LAND & BUILDING
71000
1427 / 1148
WARRANTY/SURVIVORSHIP DEED
7/8/1997
0
0507 / 1441
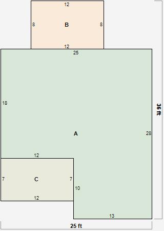
Parcel Sketches
Residential Card 1
A
MAIN
580 square feet
B
EFP ENCL FRAME PORCH
96 square feet
C
OFP OPEN FRAME PORCH
84 square feet
Parcel Images