Elected Officials
Courts
Departments
Initiatives
Open Government
About
Login / Register
Home
/
Property & Tax Records
/
Property Records
/
Property & Tax Search
/
Parcel Profile
/
Print View
Search for Another Parcel
Parcel Profile
Historical Card
Sketches
Photos
Tax Map
Taxes
Print View
Print This Page
Address: 2728 PLUM ST
Parcel: 19060039020000
Parcel Profile
Address
2728 | PLUM | ST
Street Status
PAVED | SIDEWALK
School District
CITY OF ERIE SCHOOL
Acreage
0.0947
Classification
R
Land Use Code
TWO FAMILY
Legal Description
2728 PLUM ST 37.5X110
Square Feet
1526
Topo
LEVEL
Utility
ALL PUBLIC
Zoning
Please contact your municipal zoning officer
Deed Book
2017
Deed Page
018829
2026 Tax Values
Land Value / Taxable
16,300 / 16,300.00
Building Value / Taxable
39,740 / 39,740.00
Total Value / Taxable
56,040 / 56,040.00
Clean & Green
Inactive
Homestead Status
Active
Farmstead Status
Inactive
Lerta Amount
0
Lerta Expiration Year
0
Residential Data
Card 1
Style
OLD STYLE
Basement
FULL
Year Built
1852
Exterior Wall
ALUMINUM/VINYL
Total Living Area
1526
Full Baths
2
Half Baths
0
Fuel Type
GAS
Heating
CENTRAL
Heating System
FORCED AIR
Stories
1.0
Total Bedrooms
3
Total Family Rooms
0
Total Rooms
8
Fireplaces
0
Other Buildings & Yards
No OBY Data Found
Sales History
Sale Date
Type
Price
Book / Page
Other Info
8/30/2017
LAND & BUILDING
48000
2017 / 018829
DEED
8/17/1977
0
1276 / 0312
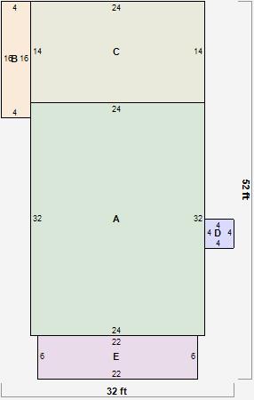
Parcel Sketches
Residential Card 1
A
MAIN
768 square feet
B
EFP ENCL FRAME PORCH
64 square feet
C
UNFIN BSMT BASEMENT UNFINISHED 1S FR ONE STORY FRAME
336 square feet
D
OFP OPEN FRAME PORCH
16 square feet
E
OFP OPEN FRAME PORCH
132 square feet
Parcel Images
Please note:
this tab is for informational purposes only and may not show all delinquencies, see the Taxes tab for more accurate delinquent taxes due.