Elected Officials
Courts
Departments
Initiatives
Open Government
About
Login / Register
Home
/
Property & Tax Records
/
Property Records
/
Property & Tax Search
/
Parcel Profile
/
Print View
Search for Another Parcel
Parcel Profile
Historical Card
Sketches
Photos
Tax Map
Taxes
Print View
Print This Page
Address: 735 W 26 ST
Parcel: 19060041012900
Parcel Profile
Address
735 | W | 26 | ST
Street Status
PAVED | SIDEWALK
School District
CITY OF ERIE SCHOOL
Acreage
0.1102
Classification
R
Land Use Code
TWO FAMILY
Legal Description
735 W 26 ST 40X120
Square Feet
1798
Topo
LEVEL
Utility
ALL PUBLIC
Zoning
Please contact your municipal zoning officer
Deed Book
2021
Deed Page
012194
2026 Tax Values
Land Value / Taxable
12,000 / 12,000.00
Building Value / Taxable
60,995 / 60,995.00
Total Value / Taxable
72,995 / 72,995.00
Clean & Green
Inactive
Homestead Status
Inactive
Farmstead Status
Inactive
Lerta Amount
0
Lerta Expiration Year
0
Residential Data
Card 1
Style
OLD STYLE
Basement
FULL
Year Built
1903
Exterior Wall
FRAME
Total Living Area
1798
Full Baths
2
Half Baths
0
Fuel Type
GAS
Heating
CENTRAL
Heating System
FORCED AIR
Stories
2.0
Total Bedrooms
4
Total Family Rooms
0
Total Rooms
8
Fireplaces
0
Other Buildings & Yards
No OBY Data Found
Sales History
Sale Date
Type
Price
Book / Page
Other Info
5/14/2021
LAND & BUILDING
425000
2021 / 012194
DEED
8/14/2013
LAND & BUILDING
0
2013 / 021415
QUIT CLAIM DEED
4/25/2012
LAND & BUILDING
60000
2012 / 010339
DEED
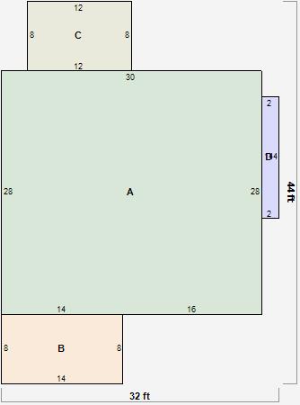
Parcel Sketches
Residential Card 1
A
MAIN
885 square feet
B
OFP OPEN FRAME PORCH
112 square feet
C
EFP ENCL FRAME PORCH
96 square feet
D
FRBAY FRAME BAY
28 square feet
Parcel Images
Please note:
this tab is for informational purposes only and may not show all delinquencies, see the Taxes tab for more accurate delinquent taxes due.