Elected Officials
Courts
Departments
Initiatives
Open Government
About
Login / Register
Home
/
Property & Tax Records
/
Property Records
/
Property & Tax Search
/
Parcel Profile
/
Print View
Search for Another Parcel
Parcel Profile
Historical Card
Sketches
Photos
Tax Map
Taxes
Print View
Print This Page
Address: 2723 LIBERTY ST
Parcel: 19060041014100
Parcel Profile
Address
2723 | LIBERTY | ST
Street Status
PAVED | SIDEWALK
School District
CITY OF ERIE SCHOOL
Acreage
0.1056
Classification
R
Land Use Code
SINGLE FAMILY
Legal Description
2723 LIBERTY ST 40X115
Square Feet
904
Topo
LEVEL
Utility
ALL PUBLIC
Zoning
Please contact your municipal zoning officer
Deed Book
0301
Deed Page
0960
2026 Tax Values
Land Value / Taxable
16,700 / 16,700.00
Building Value / Taxable
31,710 / 31,710.00
Total Value / Taxable
48,410 / 48,410.00
Clean & Green
Inactive
Homestead Status
Active
Farmstead Status
Inactive
Lerta Amount
0
Lerta Expiration Year
0
Residential Data
Card 1
Style
OLD STYLE
Basement
FULL
Year Built
1893
Exterior Wall
COMPOSITION
Total Living Area
904
Full Baths
1
Half Baths
0
Fuel Type
GAS
Heating
CENTRAL
Heating System
FORCED AIR
Stories
1.0
Total Bedrooms
3
Total Family Rooms
0
Total Rooms
7
Fireplaces
0
Other Buildings & Yards
No OBY Data Found
Sales History
Sale Date
Type
Price
Book / Page
Other Info
11/3/1993
0
0301 / 0960
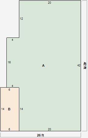
Parcel Sketches
Residential Card 1
A
MAIN
904 square feet
B
OFP OPEN FRAME PORCH
84 square feet
Parcel Images
Please note:
this tab is for informational purposes only and may not show all delinquencies, see the Taxes tab for more accurate delinquent taxes due.