Elected Officials
Courts
Departments
Initiatives
Open Government
About
Login / Register
Home
/
Property & Tax Records
/
Property Records
/
Property & Tax Search
/
Parcel Profile
/
Print View
Search for Another Parcel
Parcel Profile
Historical Card
Sketches
Photos
Tax Map
Taxes
Print View
Print This Page
Address: 2626 LIBERTY ST
Parcel: 19060041020000
Parcel Profile
Address
2626 | LIBERTY | ST
Street Status
PAVED | SIDEWALK
School District
CITY OF ERIE SCHOOL
Acreage
0.1065
Classification
R
Land Use Code
TWO FAMILY
Legal Description
2626 LIBERTY ST 40X115.93
Square Feet
1654
Topo
LEVEL
Utility
ALL PUBLIC
Zoning
Please contact your municipal zoning officer
Deed Book
2013
Deed Page
027184
2026 Tax Values
Land Value / Taxable
16,800 / 16,800.00
Building Value / Taxable
66,300 / 66,300.00
Total Value / Taxable
83,100 / 83,100.00
Clean & Green
Inactive
Homestead Status
Inactive
Farmstead Status
Inactive
Lerta Amount
0
Lerta Expiration Year
0
Residential Data
Card 1
Style
OLD STYLE
Basement
FULL
Year Built
1903
Exterior Wall
ALUMINUM/VINYL
Total Living Area
1654
Full Baths
2
Half Baths
0
Fuel Type
GAS
Heating
CENTRAL A/C
Heating System
FORCED AIR
Stories
2.0
Total Bedrooms
4
Total Family Rooms
0
Total Rooms
9
Fireplaces
0
Other Buildings & Yards
Description
Built
Width
Length
Area
FRAME UTILITY SHED
1973
22
22
484
Sales History
Sale Date
Type
Price
Book / Page
Other Info
10/14/2013
LAND & BUILDING
65500
2013 / 027184
SPECIAL WARRANTY DEED
12/17/1991
0
0188 / 1562
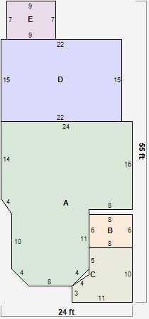
Parcel Sketches
Residential Card 1
A
MAIN
570 square feet
B
EFP ENCL FRAME PORCH
48 square feet
C
UNFIN BSMT BASEMENT UNFINISHED 1S FR ONE STORY FRAME 1S FR ONE STORY FRAME
92 square feet
D
1S FR ONE STORY FRAME
330 square feet
E
EFP ENCL FRAME PORCH EFP ENCL FRAME PORCH
63 square feet
Parcel Images