Elected Officials
Courts
Departments
Initiatives
Open Government
About
Login / Register
Home
/
Property & Tax Records
/
Property Records
/
Property & Tax Search
/
Parcel Profile
/
Print View
Search for Another Parcel
Parcel Profile
Historical Card
Sketches
Photos
Tax Map
Taxes
Print View
Print This Page
Address: 2905 LIBERTY ST
Parcel: 19060042012900
Parcel Profile
Address
2905 | LIBERTY | ST
Street Status
PAVED | SIDEWALK
School District
CITY OF ERIE SCHOOL
Acreage
0.1056
Classification
R
Land Use Code
SINGLE FAMILY
Legal Description
2905 LIBERTY ST 40X115
Square Feet
924
Topo
LEVEL
Utility
ALL PUBLIC
Zoning
Please contact your municipal zoning officer
Deed Book
2020
Deed Page
024386
2026 Tax Values
Land Value / Taxable
16,700 / 16,700.00
Building Value / Taxable
41,210 / 41,210.00
Total Value / Taxable
57,910 / 57,910.00
Clean & Green
Inactive
Homestead Status
Active
Farmstead Status
Inactive
Lerta Amount
0
Lerta Expiration Year
0
Residential Data
Card 1
Style
OLD STYLE
Basement
FULL
Year Built
1893
Exterior Wall
ALUMINUM/VINYL
Total Living Area
924
Full Baths
1
Half Baths
0
Fuel Type
GAS
Heating
CENTRAL
Heating System
FORCED AIR
Stories
1.0
Total Bedrooms
3
Total Family Rooms
0
Total Rooms
5
Fireplaces
0
Other Buildings & Yards
No OBY Data Found
Sales History
Sale Date
Type
Price
Book / Page
Other Info
11/12/2020
LAND & BUILDING
87050
2020 / 024386
SPECIAL WARRANTY DEED
9/15/2010
LAND & BUILDING
30000
2010 / 022665
FIDUCIARY DEED
3/6/1986
0
1620 / 0414
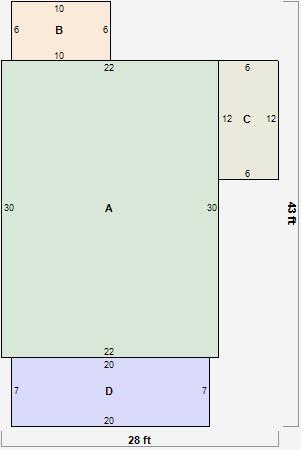
Parcel Sketches
Residential Card 1
A
MAIN
660 square feet
B
OFP OPEN FRAME PORCH
60 square feet
C
EFP ENCL FRAME PORCH
72 square feet
D
OFP OPEN FRAME PORCH
140 square feet
Parcel Images
Please note:
this tab is for informational purposes only and may not show all delinquencies, see the Taxes tab for more accurate delinquent taxes due.