Elected Officials
Courts
Departments
Initiatives
Open Government
About
Login / Register
Home
/
Property & Tax Records
/
Property Records
/
Property & Tax Search
/
Parcel Profile
/
Print View
Search for Another Parcel
Parcel Profile
Historical Card
Sketches
Photos
Tax Map
Taxes
Print View
Print This Page
Address: 2652 CHERRY ST
Parcel: 19060043011000
Parcel Profile
Address
2652 | CHERRY | ST
Street Status
PAVED | SIDEWALK
School District
CITY OF ERIE SCHOOL
Acreage
0.0689
Classification
R
Land Use Code
SINGLE FAMILY
Legal Description
2652 CHERRY ST 40XIRR
Square Feet
1548
Topo
LEVEL
Utility
ALL PUBLIC
Zoning
Please contact your municipal zoning officer
Deed Book
2021
Deed Page
004638
2026 Tax Values
Land Value / Taxable
9,900 / 9,900.00
Building Value / Taxable
33,900 / 33,900.00
Total Value / Taxable
43,800 / 43,800.00
Clean & Green
Inactive
Homestead Status
Inactive
Farmstead Status
Inactive
Lerta Amount
0
Lerta Expiration Year
0
Residential Data
Card 1
Style
OLD STYLE
Basement
FULL
Year Built
1917
Exterior Wall
FRAME
Total Living Area
1548
Full Baths
2
Half Baths
0
Fuel Type
GAS
Heating
CENTRAL
Heating System
FORCED AIR
Stories
1.5
Total Bedrooms
3
Total Family Rooms
0
Total Rooms
6
Fireplaces
0
Other Buildings & Yards
No OBY Data Found
Sales History
Sale Date
Type
Price
Book / Page
Other Info
3/1/2021
LAND & BUILDING
44000
2021 / 004638
SPECIAL WARRANTY DEED
12/27/2012
LAND & BUILDING
1000
2012 / 035045
SPECIAL WARRANTY DEED
1/8/2003
LAND & BUILDING
25000
964 / 1821
2/19/2002
LAND & BUILDING
0
854 / 1716
AFFIDAVIT
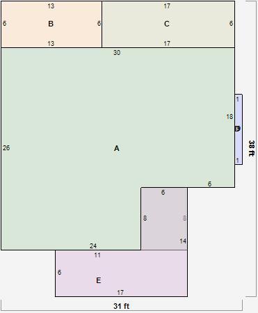
Parcel Sketches
Residential Card 1
A
MAIN
732 square feet
B
1S FR ONE STORY FRAME 1S FR ONE STORY FRAME
78 square feet
C
1S FR ONE STORY FRAME
102 square feet
D
FRBAY FRAME BAY
9 square feet
E
OFP OPEN FRAME PORCH
150 square feet
Parcel Images
Please note:
this tab is for informational purposes only and may not show all delinquencies, see the Taxes tab for more accurate delinquent taxes due.