Elected Officials
Courts
Departments
Initiatives
Open Government
About
Login / Register
Home
/
Property & Tax Records
/
Property Records
/
Property & Tax Search
/
Parcel Profile
/
Print View
Search for Another Parcel
Parcel Profile
Historical Card
Sketches
Photos
Tax Map
Taxes
Print View
Print This Page
Address: 2664 HAZEL ST
Parcel: 19060043030600
Parcel Profile
Address
2664 | HAZEL | ST
Street Status
PAVED | SIDEWALK
School District
CITY OF ERIE SCHOOL
Acreage
0.1152
Classification
R
Land Use Code
SINGLE FAMILY
Legal Description
2664 HAZEL ST 40X125.5
Square Feet
1248
Topo
LEVEL
Utility
ALL PUBLIC
Zoning
Please contact your municipal zoning officer
Deed Book
2015
Deed Page
019757
2026 Tax Values
Land Value / Taxable
11,100 / 11,100.00
Building Value / Taxable
52,380 / 52,380.00
Total Value / Taxable
63,480 / 63,480.00
Clean & Green
Inactive
Homestead Status
Active
Farmstead Status
Inactive
Lerta Amount
0
Lerta Expiration Year
0
Residential Data
Card 1
Style
OLD STYLE
Basement
FULL
Year Built
1918
Exterior Wall
ALUMINUM/VINYL
Total Living Area
1248
Full Baths
1
Half Baths
0
Fuel Type
GAS
Heating
CENTRAL
Heating System
FORCED AIR
Stories
2.0
Total Bedrooms
3
Total Family Rooms
0
Total Rooms
6
Fireplaces
0
Other Buildings & Yards
Description
Built
Width
Length
Area
FRAME OR CB DETACHED GARAGE
1946
16
22
352
Sales History
Sale Date
Type
Price
Book / Page
Other Info
9/8/2015
LAND & BUILDING
0
2015 / 019757
QUIT CLAIM DEED
3/23/2009
LAND & BUILDING
34900
1550 / 1268
DEED
3/23/2009
LAND & BUILDING
0
1550 / 1257
QUIT CLAIM DEED
10/29/2008
LAND & BUILDING
0
1527 / 1737
SHERIFF'S DED
9/1/1993
0
0289 / 0603
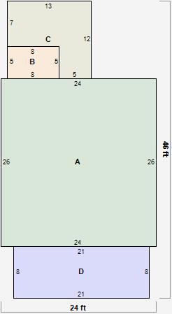
Parcel Sketches
Residential Card 1
A
MAIN
624 square feet
B
EFP ENCL FRAME PORCH
40 square feet
C
OFP OPEN FRAME PORCH
116 square feet
D
OFP OPEN FRAME PORCH
168 square feet
Parcel Images
Please note:
this tab is for informational purposes only and may not show all delinquencies, see the Taxes tab for more accurate delinquent taxes due.