Elected Officials
Courts
Departments
Initiatives
Open Government
About
Login / Register
Home
/
Property & Tax Records
/
Property Records
/
Property & Tax Search
/
Parcel Profile
/
Print View
Search for Another Parcel
Parcel Profile
Historical Card
Sketches
Photos
Tax Map
Taxes
Print View
Print This Page
Address: 2646 HAZEL ST
Parcel: 19060043031000
Parcel Profile
Address
2646 | HAZEL | ST
Street Status
PAVED | SIDEWALK
School District
CITY OF ERIE SCHOOL
Acreage
0.1152
Classification
R
Land Use Code
TWO FAMILY
Legal Description
2646 HAZEL ST 40 X 125.5
Square Feet
1695
Topo
LEVEL
Utility
ALL PUBLIC
Zoning
Please contact your municipal zoning officer
Deed Book
2022
Deed Page
004534
2026 Tax Values
Land Value / Taxable
11,100 / 11,100.00
Building Value / Taxable
51,200 / 51,200.00
Total Value / Taxable
62,300 / 62,300.00
Clean & Green
Inactive
Homestead Status
Inactive
Farmstead Status
Inactive
Lerta Amount
0
Lerta Expiration Year
0
Residential Data
Card 1
Style
OLD STYLE
Basement
FULL
Year Built
1893
Exterior Wall
ALUMINUM/VINYL
Total Living Area
1695
Full Baths
2
Half Baths
0
Fuel Type
GAS
Heating
CENTRAL
Heating System
FORCED AIR
Stories
1.5
Total Bedrooms
6
Total Family Rooms
0
Total Rooms
10
Fireplaces
0
Other Buildings & Yards
No OBY Data Found
Sales History
Sale Date
Type
Price
Book / Page
Other Info
3/2/2022
LAND & BUILDING
99000
2022 / 004534
SPECIAL WARRANTY DEED
5/13/2011
LAND & BUILDING
65000
2011 / 010794
DEED
12/11/1998
LAND & BUILDING
48000
605 / 1253
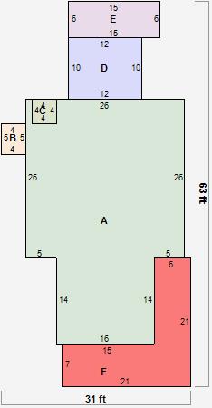
Parcel Sketches
Residential Card 1
A
MAIN
900 square feet
B
OFP OPEN FRAME PORCH
20 square feet
C
FR UT FRAME UTILITY BUILDING
16 square feet
D
UNFIN BSMT BASEMENT UNFINISHED 1S FR ONE STORY FRAME
120 square feet
E
MA_PT CONC/MAS PATIO
90 square feet
F
OFP OPEN FRAME PORCH
231 square feet
Parcel Images
Please note:
this tab is for informational purposes only and may not show all delinquencies, see the Taxes tab for more accurate delinquent taxes due.