Elected Officials
Courts
Departments
Initiatives
Open Government
About
Login / Register
Home
/
Property & Tax Records
/
Property Records
/
Property & Tax Search
/
Parcel Profile
/
Print View
Search for Another Parcel
Parcel Profile
Historical Card
Sketches
Photos
Tax Map
Taxes
Print View
Print This Page
Address: 2639 POPLAR ST
Parcel: 19060043033300
Parcel Profile
Address
2639 | POPLAR | ST
Street Status
PAVED | SIDEWALK
School District
CITY OF ERIE SCHOOL
Acreage
0.1067
Classification
R
Land Use Code
SINGLE FAMILY
Legal Description
2639 POPLAR ST 37X125.67
Square Feet
1664
Topo
LEVEL
Utility
ALL PUBLIC
Zoning
Please contact your municipal zoning officer
Deed Book
0624
Deed Page
0634
2025 Tax Values
Land Value / Taxable
11,000 / 11,000.00
Building Value / Taxable
69,680 / 69,680.00
Total Value / Taxable
80,680 / 80,680.00
Clean & Green
Inactive
Homestead Status
Active
Farmstead Status
Inactive
Lerta Amount
0
Lerta Expiration Year
0
Residential Data
Card 1
Style
OLD STYLE
Basement
FULL
Year Built
1912
Exterior Wall
MASONRY & FRAME
Total Living Area
1664
Full Baths
1
Half Baths
0
Fuel Type
GAS
Heating
CENTRAL
Heating System
FORCED AIR
Stories
2.0
Total Bedrooms
3
Total Family Rooms
0
Total Rooms
6
Fireplaces
0
Other Buildings & Yards
Description
Built
Width
Length
Area
FRAME OR CB DETACHED GARAGE
1916
12
18
216
Sales History
Sale Date
Type
Price
Book / Page
Other Info
3/18/1999
LAND & BUILDING
62500
0624 / 0634
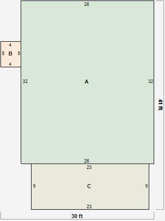
Parcel Sketches
Residential Card 1
A
MAIN
832 square feet
B
MA STOOP/TERR MAS STOOP
20 square feet
C
OMP OPEN MASONRY PORCH
207 square feet
Parcel Images