Elected Officials
Courts
Departments
Initiatives
Open Government
About
Login / Register
Home
/
Property & Tax Records
/
Property Records
/
Property & Tax Search
/
Parcel Profile
/
Print View
Search for Another Parcel
Parcel Profile
Historical Card
Sketches
Photos
Tax Map
Taxes
Print View
Print This Page
Address: 2649 POPLAR ST
Parcel: 19060043033600
Parcel Profile
Address
2649 | POPLAR | ST
Street Status
PAVED | SIDEWALK
School District
CITY OF ERIE SCHOOL
Acreage
0.1067
Classification
R
Land Use Code
SINGLE FAMILY
Legal Description
2649 POPLAR ST 37X125.67
Square Feet
2031
Topo
LEVEL
Utility
ALL PUBLIC
Zoning
Please contact your municipal zoning officer
Deed Book
2024
Deed Page
011127
2026 Tax Values
Land Value / Taxable
11,000 / 11,000.00
Building Value / Taxable
64,900 / 64,900.00
Total Value / Taxable
75,900 / 75,900.00
Clean & Green
Inactive
Homestead Status
Active
Farmstead Status
Inactive
Lerta Amount
0
Lerta Expiration Year
0
Residential Data
Card 1
Style
OLD STYLE
Basement
FULL
Year Built
1917
Exterior Wall
BRICK
Total Living Area
2031
Full Baths
2
Half Baths
0
Fuel Type
GAS
Heating
CENTRAL
Heating System
FORCED AIR
Stories
2.0
Total Bedrooms
4
Total Family Rooms
0
Total Rooms
8
Fireplaces
0
Other Buildings & Yards
Description
Built
Width
Length
Area
FRAME OR CB DETACHED GARAGE
1958
22
22
484
Sales History
Sale Date
Type
Price
Book / Page
Other Info
7/18/2024
LAND & BUILDING
169000
2024 / 011127
SPECIAL WARRANTY DEED
3/3/2008
LAND & BUILDING
87500
1479 / 1658
SPECIAL WARRANTY DEED
10/27/2005
LAND & BUILDING
108000
1282 / 0436
WARRANTY/SURVIVORSHIP DEED
7/21/2005
LAND & BUILDING
0
1253 / 0888
DEED
7/21/2005
LAND & BUILDING
37900
1253 / 0893
DEED
6/9/2005
LAND & BUILDING
0
1241 / 0088
SHERIFF'S DED
7/8/2003
LAND & BUILDING
52000
1033 / 584
DEED
7/7/1992
0
0220 / 0958
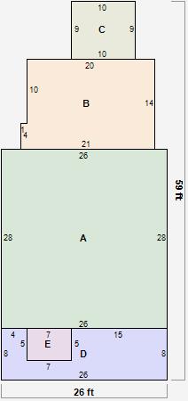
Parcel Sketches
Residential Card 1
A
MAIN
728 square feet
B
1S FR ONE STORY FRAME
284 square feet
C
EFP ENCL FRAME PORCH
90 square feet
D
OMP OPEN MASONRY PORCH
173 square feet
E
EFP ENCL FRAME PORCH
35 square feet
Parcel Images
Please note:
this tab is for informational purposes only and may not show all delinquencies, see the Taxes tab for more accurate delinquent taxes due.