Elected Officials
Courts
Departments
Initiatives
Open Government
About
Login / Register
Home
/
Property & Tax Records
/
Property Records
/
Property & Tax Search
/
Parcel Profile
/
Print View
Search for Another Parcel
Parcel Profile
Historical Card
Sketches
Photos
Tax Map
Taxes
Print View
Print This Page
Address: 2671 POPLAR ST
Parcel: 19060043034100
Parcel Profile
Address
2671 | POPLAR | ST
Street Status
PAVED | SIDEWALK
School District
CITY OF ERIE SCHOOL
Acreage
0.1067
Classification
R
Land Use Code
SINGLE FAMILY
Legal Description
2671 POPLAR ST 37 X 125.67
Square Feet
1776
Topo
LEVEL
Utility
ALL PUBLIC
Zoning
Please contact your municipal zoning officer
Deed Book
2024
Deed Page
018990
2026 Tax Values
Land Value / Taxable
11,000 / 11,000.00
Building Value / Taxable
71,320 / 71,320.00
Total Value / Taxable
82,320 / 82,320.00
Clean & Green
Inactive
Homestead Status
Active
Farmstead Status
Inactive
Lerta Amount
0
Lerta Expiration Year
0
Residential Data
Card 1
Style
OLD STYLE
Basement
FULL
Year Built
1917
Exterior Wall
BRICK
Total Living Area
1776
Full Baths
2
Half Baths
0
Fuel Type
GAS
Heating
CENTRAL A/C
Heating System
FORCED AIR
Stories
2.0
Total Bedrooms
3
Total Family Rooms
1
Total Rooms
7
Fireplaces
1
Other Buildings & Yards
No OBY Data Found
Sales History
Sale Date
Type
Price
Book / Page
Other Info
11/18/2024
LAND & BUILDING
180000
2024 / 018990
SPECIAL WARRANTY DEED
10/27/2022
LAND & BUILDING
129900
2022 / 023155
SPECIAL WARRANTY DEED
4/3/1964
0
0893 / 0186
2/8/1960
0
0814 / 0288
FIDUCIARY DEED
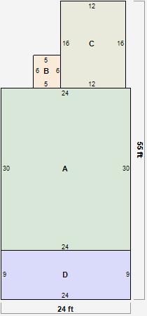
Parcel Sketches
Residential Card 1
A
MAIN
720 square feet
B
OFP OPEN FRAME PORCH
30 square feet
C
1S FR ONE STORY FRAME
192 square feet
D
OMP OPEN MASONRY PORCH
216 square feet
Parcel Images
Please note:
this tab is for informational purposes only and may not show all delinquencies, see the Taxes tab for more accurate delinquent taxes due.