Elected Officials
Courts
Departments
Initiatives
Open Government
About
Login / Register
Home
/
Property & Tax Records
/
Property Records
/
Property & Tax Search
/
Parcel Profile
/
Print View
Search for Another Parcel
Parcel Profile
Historical Card
Sketches
Photos
Tax Map
Taxes
Print View
Print This Page
Address: 633 W 29 ST
Parcel: 19060044022400
Parcel Profile
Address
633 | W | 29 | ST
Street Status
PAVED | SIDEWALK
School District
CITY OF ERIE SCHOOL
Acreage
0.0437
Classification
R
Land Use Code
TWO FAMILY
Legal Description
633 W 29 ST 40.5 X 47
Square Feet
1696
Topo
LEVEL
Utility
ALL PUBLIC
Zoning
Please contact your municipal zoning officer
Deed Book
0747
Deed Page
1094
2026 Tax Values
Land Value / Taxable
8,900 / 8,900.00
Building Value / Taxable
41,100 / 41,100.00
Total Value / Taxable
50,000 / 50,000.00
Clean & Green
Inactive
Homestead Status
Inactive
Farmstead Status
Inactive
Lerta Amount
0
Lerta Expiration Year
0
Residential Data
Card 1
Style
OLD STYLE
Basement
FULL
Year Built
1902
Exterior Wall
ALUMINUM/VINYL
Total Living Area
1696
Full Baths
2
Half Baths
0
Fuel Type
GAS
Heating
CENTRAL
Heating System
FORCED AIR
Stories
2.0
Total Bedrooms
4
Total Family Rooms
0
Total Rooms
8
Fireplaces
0
Other Buildings & Yards
No OBY Data Found
Sales History
Sale Date
Type
Price
Book / Page
Other Info
1/11/2001
LAND & BUILDING
22000
0747 / 1094
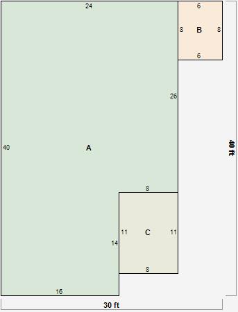
Parcel Sketches
Residential Card 1
A
MAIN
848 square feet
B
EFP ENCL FRAME PORCH
48 square feet
C
OFP OPEN FRAME PORCH
88 square feet
Parcel Images
Please note:
this tab is for informational purposes only and may not show all delinquencies, see the Taxes tab for more accurate delinquent taxes due.