Elected Officials
Courts
Departments
Initiatives
Open Government
About
Login / Register
Home
/
Property & Tax Records
/
Property Records
/
Property & Tax Search
/
Parcel Profile
/
Print View
Search for Another Parcel
Parcel Profile
Historical Card
Sketches
Photos
Tax Map
Taxes
Print View
Print This Page
Address: 637 W 29 ST
Parcel: 19060044022500
Parcel Profile
Address
637 | W | 29 | ST
Street Status
PAVED | SIDEWALK
School District
CITY OF ERIE SCHOOL
Acreage
0.0539
Classification
R
Land Use Code
SINGLE FAMILY
Legal Description
637 W 29 ST 50X47
Square Feet
924
Topo
LEVEL
Utility
ALL PUBLIC
Zoning
Please contact your municipal zoning officer
Deed Book
2016
Deed Page
020537
2026 Tax Values
Land Value / Taxable
9,300 / 9,300.00
Building Value / Taxable
33,200 / 33,200.00
Total Value / Taxable
42,500 / 42,500.00
Clean & Green
Inactive
Homestead Status
Inactive
Farmstead Status
Inactive
Lerta Amount
0
Lerta Expiration Year
0
Residential Data
Card 1
Style
OLD STYLE
Basement
FULL
Year Built
1930
Exterior Wall
BRICK
Total Living Area
924
Full Baths
1
Half Baths
0
Fuel Type
GAS
Heating
CENTRAL
Heating System
FORCED AIR
Stories
1.5
Total Bedrooms
2
Total Family Rooms
0
Total Rooms
5
Fireplaces
0
Other Buildings & Yards
Description
Built
Width
Length
Area
FRAME OR CB DETACHED GARAGE
1930
10
16
160
Sales History
Sale Date
Type
Price
Book / Page
Other Info
9/21/2016
LAND & BUILDING
25000
2016 / 020537
SPECIAL WARRANTY DEED
3/24/2014
LAND & BUILDING
0
2014 / 005226
FIDUCIARY DEED
2/14/2005
LAND & BUILDING
0
1210 / 1985
DEED
11/25/1944
0
0451 / 0511
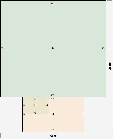
Parcel Sketches
Residential Card 1
A
MAIN
528 square feet
B
OMP OPEN MASONRY PORCH
112 square feet
C
EMP ENCL MASONRY PORCH
24 square feet
Parcel Images
Please note:
this tab is for informational purposes only and may not show all delinquencies, see the Taxes tab for more accurate delinquent taxes due.