Elected Officials
Courts
Departments
Initiatives
Open Government
About
Login / Register
Home
/
Property & Tax Records
/
Property Records
/
Property & Tax Search
/
Parcel Profile
/
Print View
Search for Another Parcel
Parcel Profile
Historical Card
Sketches
Photos
Tax Map
Taxes
Print View
Print This Page
Address: 2901 HAZEL ST
Parcel: 19060044022600
Parcel Profile
Address
2901 | HAZEL | ST
Street Status
PAVED | SIDEWALK
School District
CITY OF ERIE SCHOOL
Acreage
0.0378
Classification
C
Land Use Code
RESTAURANTS, STORES (RETAIL)
Legal Description
2901 HAZEL 47X35
Square Feet
1144
Topo
LEVEL
Utility
ALL PUBLIC
Zoning
Please contact your municipal zoning officer
Deed Book
0656
Deed Page
1817
2026 Tax Values
Land Value / Taxable
8,200 / 8,200.00
Building Value / Taxable
40,700 / 40,700.00
Total Value / Taxable
48,900 / 48,900.00
Clean & Green
Inactive
Homestead Status
Inactive
Farmstead Status
Inactive
Lerta Amount
0
Lerta Expiration Year
0
Commercial Data
Card 1
RETAIL MULTI OCCUP
Business Living Area - 1144
Year Built - 1922
Improvement Name - COMFORT CARE AND RESOURCES
Value - 33580
Other Buildings & Yards
Description
Built
Width
Length
Area
PAVING ASPHALT PARKING
1960
0
0
300
Sales History
Sale Date
Type
Price
Book / Page
Other Info
8/18/1999
0
0656 / 1817
7/12/1999
LAND & BUILDING
7000
648 / 1447
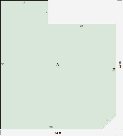
Parcel Sketches
Commercial Card 1
A
MAIN
1144 square feet
Parcel Images
Please note:
this tab is for informational purposes only and may not show all delinquencies, see the Taxes tab for more accurate delinquent taxes due.