Elected Officials
Courts
Departments
Initiatives
Open Government
About
Login / Register
Home
/
Property & Tax Records
/
Property Records
/
Property & Tax Search
/
Parcel Profile
/
Print View
Search for Another Parcel
Parcel Profile
Historical Card
Sketches
Photos
Tax Map
Taxes
Print View
Print This Page
Address: 2909 HAZEL ST
Parcel: 19060044022700
Parcel Profile
Address
2909 | HAZEL | ST
Street Status
PAVED | SIDEWALK
School District
CITY OF ERIE SCHOOL
Acreage
0.1152
Classification
R
Land Use Code
SINGLE FAMILY
Legal Description
2909 HAZEL ST 40 X 125.5
Square Feet
1216
Topo
LEVEL
Utility
ALL PUBLIC
Zoning
Please contact your municipal zoning officer
Deed Book
1079
Deed Page
0318
2026 Tax Values
Land Value / Taxable
11,100 / 11,100.00
Building Value / Taxable
47,030 / 47,030.00
Total Value / Taxable
58,130 / 58,130.00
Clean & Green
Inactive
Homestead Status
Active
Farmstead Status
Inactive
Lerta Amount
0
Lerta Expiration Year
0
Residential Data
Card 1
Style
BUNGALOW
Basement
PART
Year Built
1878
Exterior Wall
ALUMINUM/VINYL
Total Living Area
1216
Full Baths
1
Half Baths
0
Fuel Type
GAS
Heating
CENTRAL
Heating System
FORCED AIR
Stories
1.0
Total Bedrooms
3
Total Family Rooms
0
Total Rooms
5
Fireplaces
0
Other Buildings & Yards
No OBY Data Found
Sales History
Sale Date
Type
Price
Book / Page
Other Info
10/5/1972
0
1079 / 0318
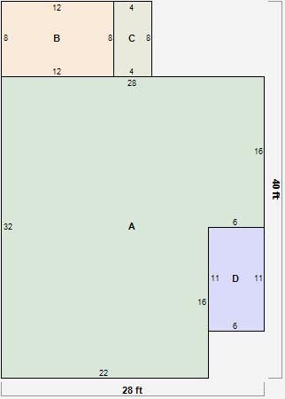
Parcel Sketches
Residential Card 1
A
MAIN
800 square feet
B
1S FR ONE STORY FRAME
96 square feet
C
OFP OPEN FRAME PORCH
32 square feet
D
OFP OPEN FRAME PORCH
66 square feet
Parcel Images
Please note:
this tab is for informational purposes only and may not show all delinquencies, see the Taxes tab for more accurate delinquent taxes due.