Elected Officials
Courts
Departments
Initiatives
Open Government
About
Login / Register
Home
/
Property & Tax Records
/
Property Records
/
Property & Tax Search
/
Parcel Profile
/
Print View
Search for Another Parcel
Parcel Profile
Historical Card
Sketches
Photos
Tax Map
Taxes
Print View
Print This Page
Address: 655 W 29 ST
Parcel: 19060044032400
Parcel Profile
Address
655 | W | 29 | ST
Street Status
PAVED | SIDEWALK
School District
CITY OF ERIE SCHOOL
Acreage
0.0558
Classification
R
Land Use Code
SINGLE FAMILY
Legal Description
655 W 29 ST 51.5 X 47.2
Square Feet
1544
Topo
LEVEL
Utility
ALL PUBLIC
Zoning
Please contact your municipal zoning officer
Deed Book
0589
Deed Page
0230
2026 Tax Values
Land Value / Taxable
9,400 / 9,400.00
Building Value / Taxable
47,710 / 47,710.00
Total Value / Taxable
57,110 / 57,110.00
Clean & Green
Inactive
Homestead Status
Active
Farmstead Status
Inactive
Lerta Amount
0
Lerta Expiration Year
0
Residential Data
Card 1
Style
OLD STYLE
Basement
FULL
Year Built
1892
Exterior Wall
ALUMINUM/VINYL
Total Living Area
1544
Full Baths
1
Half Baths
0
Fuel Type
GAS
Heating
CENTRAL
Heating System
FORCED AIR
Stories
1.5
Total Bedrooms
2
Total Family Rooms
0
Total Rooms
5
Fireplaces
0
Other Buildings & Yards
No OBY Data Found
Sales History
Sale Date
Type
Price
Book / Page
Other Info
9/22/1998
0
0589 / 0230
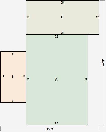
Parcel Sketches
Residential Card 1
A
MAIN
704 square feet
B
OFP OPEN FRAME PORCH
162 square feet
C
1S FR ONE STORY FRAME
312 square feet
Parcel Images
Please note:
this tab is for informational purposes only and may not show all delinquencies, see the Taxes tab for more accurate delinquent taxes due.