Elected Officials
Courts
Departments
Initiatives
Open Government
About
Login / Register
Home
/
Property & Tax Records
/
Property Records
/
Property & Tax Search
/
Parcel Profile
/
Print View
Search for Another Parcel
Parcel Profile
Historical Card
Sketches
Photos
Tax Map
Taxes
Print View
Print This Page
Address: 2656 SIGSBEE ST
Parcel: 19060045010700
Parcel Profile
Address
2656 | SIGSBEE | ST
Street Status
PAVED
School District
CITY OF ERIE SCHOOL
Acreage
0.1113
Classification
R
Land Use Code
SINGLE FAMILY
Legal Description
2656 SIGSBEE ST 32*33X15O
Square Feet
1632
Topo
LEVEL
Utility
ALL PUBLIC
Zoning
Please contact your municipal zoning officer
Deed Book
2019
Deed Page
001479
2026 Tax Values
Land Value / Taxable
11,000 / 11,000.00
Building Value / Taxable
64,420 / 64,420.00
Total Value / Taxable
75,420 / 75,420.00
Clean & Green
Inactive
Homestead Status
Active
Farmstead Status
Inactive
Lerta Amount
0
Lerta Expiration Year
0
Residential Data
Card 1
Style
OLD STYLE
Basement
FULL
Year Built
1917
Exterior Wall
ALUMINUM/VINYL
Total Living Area
1632
Full Baths
1
Half Baths
0
Fuel Type
GAS
Heating
CENTRAL
Heating System
FORCED AIR
Stories
2.0
Total Bedrooms
4
Total Family Rooms
0
Total Rooms
9
Fireplaces
0
Other Buildings & Yards
Description
Built
Width
Length
Area
FRAME OR CB DETACHED GARAGE
1917
12
18
216
Sales History
Sale Date
Type
Price
Book / Page
Other Info
1/25/2019
LAND & BUILDING
0
2019 / 001479
QUIT CLAIM DEED
2/15/2018
LAND & BUILDING
59900
2018 / 003095
FIDUCIARY DEED
1/8/1965
0
0909 / 0245
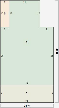
Parcel Sketches
Residential Card 1
A
MAIN
792 square feet
B
UNFIN BSMT BASEMENT UNFINISHED 1S FR ONE STORY FRAME
48 square feet
C
EFP ENCL FRAME PORCH
192 square feet
Parcel Images
Please note:
this tab is for informational purposes only and may not show all delinquencies, see the Taxes tab for more accurate delinquent taxes due.