Elected Officials
Courts
Departments
Initiatives
Open Government
About
Login / Register
Home
/
Property & Tax Records
/
Property Records
/
Property & Tax Search
/
Parcel Profile
/
Print View
Search for Another Parcel
Parcel Profile
Historical Card
Sketches
Photos
Tax Map
Taxes
Print View
Print This Page
Address: 2646 SIGSBEE ST
Parcel: 19060045011000
Parcel Profile
Address
2646 | SIGSBEE | ST
Street Status
PAVED
School District
CITY OF ERIE SCHOOL
Acreage
0.1128
Classification
R
Land Use Code
SINGLE FAMILY
Legal Description
2646 SIGSBEE ST 32*75X15O
Square Feet
1248
Topo
LEVEL
Utility
ALL PUBLIC
Zoning
Please contact your municipal zoning officer
Deed Book
2019
Deed Page
010915
2025 Tax Values
Land Value / Taxable
11,100 / 11,100.00
Building Value / Taxable
73,600 / 73,600.00
Total Value / Taxable
84,700 / 84,700.00
Clean & Green
Inactive
Homestead Status
Active
Farmstead Status
Inactive
Lerta Amount
0
Lerta Expiration Year
0
Residential Data
Card 1
Style
OLD STYLE
Basement
FULL
Year Built
1917
Exterior Wall
ALUMINUM/VINYL
Total Living Area
1248
Full Baths
1
Half Baths
1
Fuel Type
GAS
Heating
CENTRAL
Heating System
FORCED AIR
Stories
2.0
Total Bedrooms
3
Total Family Rooms
0
Total Rooms
6
Fireplaces
1
Other Buildings & Yards
Description
Built
Width
Length
Area
FRAME OR CB DETACHED GARAGE
1917
12
18
216
Sales History
Sale Date
Type
Price
Book / Page
Other Info
6/11/2019
LAND & BUILDING
95000
2019 / 010915
SPECIAL WARRANTY DEED
6/9/2011
LAND & BUILDING
92500
2011 / 012946
SPECIAL WARRANTY DEED
12/30/2008
LAND & BUILDING
91000
1537 / 1373
DEED
3/17/2006
LAND & BUILDING
37000
1313 / 1043
DEED
12/19/2001
LAND & BUILDING
0
836 / 1397
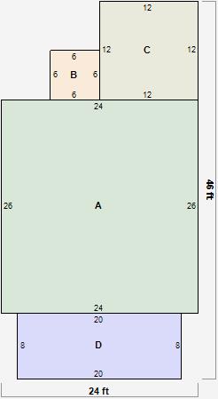
Parcel Sketches
Residential Card 1
A
MAIN
624 square feet
B
EFP ENCL FRAME PORCH
36 square feet
C
OFP OPEN FRAME PORCH
144 square feet
D
OFP OPEN FRAME PORCH
160 square feet
Parcel Images