Elected Officials
Courts
Departments
Initiatives
Open Government
About
Login / Register
Home
/
Property & Tax Records
/
Property Records
/
Property & Tax Search
/
Parcel Profile
/
Print View
Search for Another Parcel
Parcel Profile
Historical Card
Sketches
Photos
Tax Map
Taxes
Print View
Print This Page
Address: 507 STAFFORD AVE
Parcel: 19060046020500
Parcel Profile
Address
507 | STAFFORD | AVE
Street Status
PAVED | SIDEWALK
School District
CITY OF ERIE SCHOOL
Acreage
0.0413
Classification
R
Land Use Code
SINGLE FAMILY
Legal Description
507 STAFFORD AVE 40 X 45
Square Feet
1152
Topo
LEVEL
Utility
ALL PUBLIC
Zoning
Please contact your municipal zoning officer
Deed Book
2019
Deed Page
017022
2026 Tax Values
Land Value / Taxable
8,800 / 8,800.00
Building Value / Taxable
52,160 / 52,160.00
Total Value / Taxable
60,960 / 60,960.00
Clean & Green
Inactive
Homestead Status
Inactive
Farmstead Status
Inactive
Lerta Amount
0
Lerta Expiration Year
0
Residential Data
Card 1
Style
OLD STYLE
Basement
FULL
Year Built
1912
Exterior Wall
COMPOSITION
Total Living Area
1152
Full Baths
1
Half Baths
0
Fuel Type
GAS
Heating
CENTRAL
Heating System
FORCED AIR
Stories
2.0
Total Bedrooms
3
Total Family Rooms
0
Total Rooms
6
Fireplaces
0
Other Buildings & Yards
No OBY Data Found
Sales History
Sale Date
Type
Price
Book / Page
Other Info
8/28/2019
LAND & BUILDING
36950
2019 / 017022
SPECIAL WARRANTY DEED
2/8/2019
LAND & BUILDING
28000
2019 / 002325
SPECIAL WARRANTY DEED
12/29/1995
0
0418 / 2234
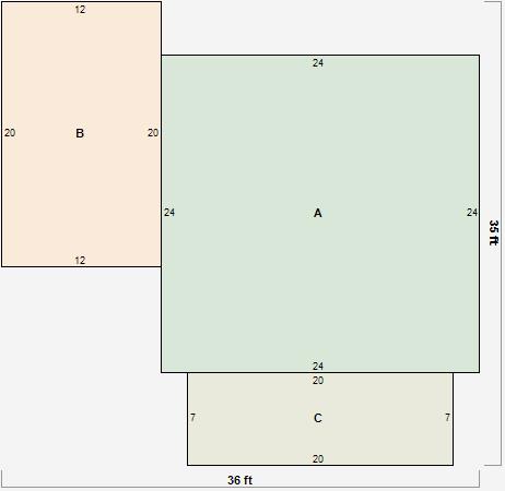
Parcel Sketches
Residential Card 1
A
MAIN
576 square feet
B
FR GR FRAME GARAGE
240 square feet
C
OFP OPEN FRAME PORCH
140 square feet
Parcel Images
Please note:
this tab is for informational purposes only and may not show all delinquencies, see the Taxes tab for more accurate delinquent taxes due.