Elected Officials
Courts
Departments
Initiatives
Open Government
About
Login / Register
Home
/
Property & Tax Records
/
Property Records
/
Property & Tax Search
/
Parcel Profile
/
Print View
Search for Another Parcel
Parcel Profile
Historical Card
Sketches
Photos
Tax Map
Taxes
Print View
Print This Page
Address: 511 STAFFORD AVE
Parcel: 19060046020600
Parcel Profile
Address
511 | STAFFORD | AVE
Street Status
PAVED | SIDEWALK
School District
CITY OF ERIE SCHOOL
Acreage
0.0826
Classification
R
Land Use Code
SINGLE FAMILY
Legal Description
511 STAFFORD AVE 40X80
Square Feet
1288
Topo
LEVEL
Utility
ALL PUBLIC
Zoning
Please contact your municipal zoning officer
Deed Book
0717
Deed Page
0713
2025 Tax Values
Land Value / Taxable
10,400 / 10,400.00
Building Value / Taxable
58,300 / 58,300.00
Total Value / Taxable
68,700 / 68,700.00
Clean & Green
Inactive
Homestead Status
Active
Farmstead Status
Inactive
Lerta Amount
0
Lerta Expiration Year
0
Residential Data
Card 1
Style
OLD STYLE
Basement
FULL
Year Built
1912
Exterior Wall
ALUMINUM/VINYL
Total Living Area
1288
Full Baths
1
Half Baths
0
Fuel Type
GAS
Heating
CENTRAL
Heating System
FORCED AIR
Stories
2.0
Total Bedrooms
3
Total Family Rooms
0
Total Rooms
6
Fireplaces
0
Other Buildings & Yards
Description
Built
Width
Length
Area
FRAME OR CB DETACHED GARAGE
1978
15
20
300
Sales History
Sale Date
Type
Price
Book / Page
Other Info
7/27/2000
0
0717 / 0713
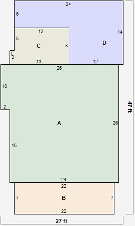
Parcel Sketches
Residential Card 1
A
MAIN
644 square feet
B
EFP ENCL FRAME PORCH
154 square feet
C
EFP ENCL FRAME PORCH
99 square feet
D
CANPY CANOPY
240 square feet
Parcel Images