Elected Officials
Courts
Departments
Initiatives
Open Government
About
Login / Register
Home
/
Property & Tax Records
/
Property Records
/
Property & Tax Search
/
Parcel Profile
/
Print View
Search for Another Parcel
Parcel Profile
Historical Card
Sketches
Photos
Tax Map
Taxes
Print View
Print This Page
Address: 552 STAFFORD AVE
Parcel: 19060046032800
Parcel Profile
Address
552 | STAFFORD | AVE
Street Status
PAVED | SIDEWALK
School District
CITY OF ERIE SCHOOL
Acreage
0.1731
Classification
R
Land Use Code
SINGLE FAMILY
Legal Description
552 STAFFORD AVE 52X145
Square Feet
1008
Topo
LEVEL
Utility
ALL PUBLIC
Zoning
Please contact your municipal zoning officer
Deed Book
2017
Deed Page
025975
2026 Tax Values
Land Value / Taxable
11,800 / 11,800.00
Building Value / Taxable
45,410 / 45,410.00
Total Value / Taxable
57,210 / 57,210.00
Clean & Green
Inactive
Homestead Status
Inactive
Farmstead Status
Inactive
Lerta Amount
0
Lerta Expiration Year
0
Residential Data
Card 1
Style
BUNGALOW
Basement
FULL
Year Built
1948
Exterior Wall
ALUMINUM/VINYL
Total Living Area
1008
Full Baths
1
Half Baths
0
Fuel Type
GAS
Heating
CENTRAL
Heating System
FORCED AIR
Stories
1.0
Total Bedrooms
2
Total Family Rooms
0
Total Rooms
4
Fireplaces
1
Other Buildings & Yards
No OBY Data Found
Sales History
Sale Date
Type
Price
Book / Page
Other Info
11/27/2017
LAND & BUILDING
62000
2017 / 025975
SPECIAL WARRANTY DEED
7/31/2012
LAND & BUILDING
54000
2012 / 020577
SPECIAL WARRANTY DEED
8/9/2010
LAND & BUILDING
55000
2010 / 019352
DEED
3/3/2000
0
0690 / 1253
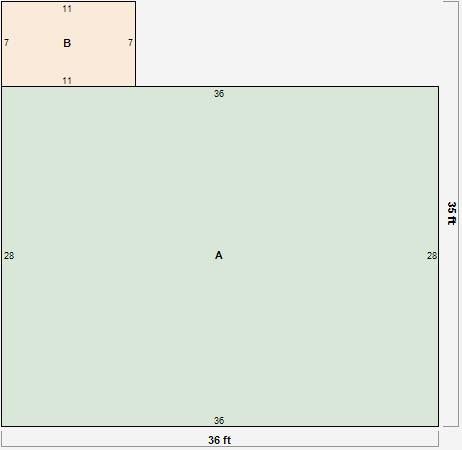
Parcel Sketches
Residential Card 1
A
MAIN
1008 square feet
B
OFP OPEN FRAME PORCH
77 square feet
Parcel Images
Please note:
this tab is for informational purposes only and may not show all delinquencies, see the Taxes tab for more accurate delinquent taxes due.