Elected Officials
Courts
Departments
Initiatives
Open Government
About
Login / Register
Home
/
Property & Tax Records
/
Property Records
/
Property & Tax Search
/
Parcel Profile
/
Print View
Search for Another Parcel
Parcel Profile
Historical Card
Sketches
Photos
Tax Map
Taxes
Print View
Print This Page
Address: 511 W 28 ST
Parcel: 19060047011300
Parcel Profile
Address
511 | W | 28 | ST
Street Status
PAVED | SIDEWALK
School District
CITY OF ERIE SCHOOL
Acreage
0.0882
Classification
R
Land Use Code
SINGLE FAMILY
Legal Description
511 W 28 ST 40 X 120
Square Feet
752
Topo
LEVEL
Utility
ALL PUBLIC
Zoning
Please contact your municipal zoning officer
Deed Book
0573
Deed Page
2131
2026 Tax Values
Land Value / Taxable
10,700 / 10,700.00
Building Value / Taxable
44,730 / 44,730.00
Total Value / Taxable
55,430 / 55,430.00
Clean & Green
Inactive
Homestead Status
Active
Farmstead Status
Inactive
Lerta Amount
0
Lerta Expiration Year
0
Residential Data
Card 1
Style
BUNGALOW
Basement
FULL
Year Built
1951
Exterior Wall
ALUMINUM/VINYL
Total Living Area
752
Full Baths
1
Half Baths
0
Fuel Type
GAS
Heating
CENTRAL A/C
Heating System
FORCED AIR
Stories
1.0
Total Bedrooms
2
Total Family Rooms
0
Total Rooms
4
Fireplaces
0
Other Buildings & Yards
Description
Built
Width
Length
Area
FRAME OR CB DETACHED GARAGE
1951
14
22
308
Sales History
Sale Date
Type
Price
Book / Page
Other Info
7/13/1998
0
0573 / 2131
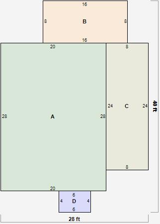
Parcel Sketches
Residential Card 1
A
MAIN
560 square feet
B
EFP ENCL FRAME PORCH
128 square feet
C
1S FR ONE STORY FRAME
192 square feet
D
OFP OPEN FRAME PORCH
24 square feet
Parcel Images
Please note:
this tab is for informational purposes only and may not show all delinquencies, see the Taxes tab for more accurate delinquent taxes due.