Elected Officials
Courts
Departments
Initiatives
Open Government
About
Login / Register
Home
/
Property & Tax Records
/
Property Records
/
Property & Tax Search
/
Parcel Profile
/
Print View
Search for Another Parcel
Parcel Profile
Historical Card
Sketches
Photos
Tax Map
Taxes
Print View
Print This Page
Address: 468 W 28 ST
Parcel: 19060047020700
Parcel Profile
Address
468 | W | 28 | ST
Street Status
PAVED | SIDEWALK
School District
CITY OF ERIE SCHOOL
Acreage
0.1185
Classification
R
Land Use Code
SINGLE FAMILY
Legal Description
468 W 28 ST 40 X 129
Square Feet
1652
Topo
LEVEL
Utility
ALL PUBLIC
Zoning
Please contact your municipal zoning officer
Deed Book
2012
Deed Page
024583
2026 Tax Values
Land Value / Taxable
11,100 / 11,100.00
Building Value / Taxable
67,000 / 67,000.00
Total Value / Taxable
78,100 / 78,100.00
Clean & Green
Inactive
Homestead Status
Active
Farmstead Status
Inactive
Lerta Amount
0
Lerta Expiration Year
0
Residential Data
Card 1
Style
OLD STYLE
Basement
FULL
Year Built
1924
Exterior Wall
BRICK
Total Living Area
1652
Full Baths
1
Half Baths
0
Fuel Type
GAS
Heating
CENTRAL A/C
Heating System
FORCED AIR
Stories
2.0
Total Bedrooms
4
Total Family Rooms
0
Total Rooms
8
Fireplaces
1
Other Buildings & Yards
Description
Built
Width
Length
Area
FRAME OR CB DETACHED GARAGE
1924
22
19
418
Sales History
Sale Date
Type
Price
Book / Page
Other Info
9/7/2012
LAND & BUILDING
117000
2012 / 024583
SPECIAL WARRANTY DEED
6/16/2009
LAND & BUILDING
105000
1569 / 0457
DEED
3/8/1993
0
0257 / 2085
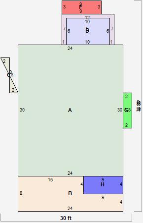
Parcel Sketches
Residential Card 1
A
MAIN
720 square feet
B
OMP OPEN MASONRY PORCH
156 square feet
C
FROVR FRAME OVERHANG
16 square feet
D
1S FR ONE STORY FRAME 1S FR ONE STORY FRAME
60 square feet
E
FROVR FRAME OVERHANG
24 square feet
F
WDDCK WOOD DECKS
27 square feet
G
FROVR FRAME OVERHANG
16 square feet
H
1SMAS MASONRY
36 square feet
Parcel Images
Please note:
this tab is for informational purposes only and may not show all delinquencies, see the Taxes tab for more accurate delinquent taxes due.