Elected Officials
Courts
Departments
Initiatives
Open Government
About
Login / Register
Home
/
Property & Tax Records
/
Property Records
/
Property & Tax Search
/
Parcel Profile
/
Print View
Search for Another Parcel
Parcel Profile
Historical Card
Sketches
Photos
Tax Map
Taxes
Print View
Print This Page
Address: 429 W 31 ST
Parcel: 19060049010800
Parcel Profile
Address
429 | W | 31 | ST
Street Status
PAVED | SIDEWALK
School District
CITY OF ERIE SCHOOL
Acreage
0.1228
Classification
R
Land Use Code
SINGLE FAMILY
Legal Description
429 W 31 ST 40X133.75
Square Feet
1990
Topo
LEVEL
Utility
ALL PUBLIC
Zoning
Please contact your municipal zoning officer
Deed Book
2018
Deed Page
020428
2025 Tax Values
Land Value / Taxable
11,200 / 11,200.00
Building Value / Taxable
72,280 / 72,280.00
Total Value / Taxable
83,480 / 83,480.00
Clean & Green
Inactive
Homestead Status
Active
Farmstead Status
Inactive
Lerta Amount
0
Lerta Expiration Year
0
Residential Data
Card 1
Style
OLD STYLE
Basement
FULL
Year Built
1927
Exterior Wall
BRICK
Total Living Area
1990
Full Baths
1
Half Baths
1
Fuel Type
GAS
Heating
CENTRAL
Heating System
FORCED AIR
Stories
2.0
Total Bedrooms
4
Total Family Rooms
1
Total Rooms
9
Fireplaces
0
Other Buildings & Yards
Description
Built
Width
Length
Area
FRAME OR CB DETACHED GARAGE
1927
22
22
484
Sales History
Sale Date
Type
Price
Book / Page
Other Info
10/3/2018
LAND & BUILDING
116900
2018 / 020428
SPECIAL WARRANTY DEED
5/16/2005
LAND & BUILDING
90000
1234 / 0425
DEED
1/3/1955
0
0691 / 0587
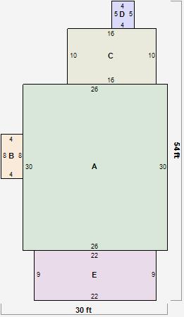
Parcel Sketches
Residential Card 1
A
MAIN
780 square feet
B
OFP OPEN FRAME PORCH
32 square feet
C
UNFIN BSMT BASEMENT UNFINISHED 1SMAS MASONRY
160 square feet
D
OFP OPEN FRAME PORCH
20 square feet
E
1S FR ONE STORY FRAME
198 square feet
Parcel Images