Address: 437 W 31 ST   Parcel: 19060049011000
Parcel Profile
Address437 | W | 31 | ST
Street StatusPAVED | SIDEWALK
School DistrictCITY OF ERIE SCHOOL
Acreage0.1228
ClassificationR
Land Use CodeSINGLE FAMILY
Legal Description437 W 31 ST 40 X 133.75
Square Feet1649
TopoLEVEL
UtilityALL PUBLIC
ZoningPlease contact your municipal zoning officer
Deed Book2021
Deed Page025009
2025 Tax Values
Land Value / Taxable11,200 / 11,200.00
Building Value / Taxable86,850 / 86,850.00
Total Value / Taxable98,050 / 98,050.00
Clean & GreenInactive
Homestead StatusActive
Farmstead StatusInactive
Lerta Amount0
Lerta Expiration Year0
Residential Data
Card 1
     StyleOLD STYLE
     BasementFULL
     Year Built1926
     Exterior WallBRICK
     Total Living Area1649
     Full Baths1
     Half Baths1
     Fuel TypeGAS
     HeatingCENTRAL A/C
     Heating SystemFORCED AIR
     Stories2.0
     Total Bedrooms3
     Total Family Rooms0
     Total Rooms6
     Fireplaces1
Other Buildings & Yards
DescriptionBuiltWidthLengthArea
 FRAME OR CB DETACHED GARAGE 1926 22 22 484
Sales History
Sale DateTypePriceBook / PageOther Info
9/17/2021LAND & BUILDING1435002021 / 025009DEED
9/17/2013LAND & BUILDING1110002013 / 024773DEED
6/2/2003LAND & BUILDING975001018 / 1065SPECIAL WARRANTY DEED
6/29/1998 00570 / 1675 



Parcel Sketches

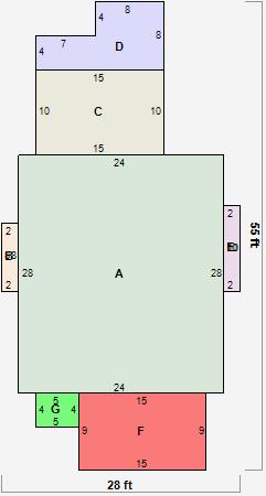
Residential Card 1

Residential Card 1
AMAIN672 square feet
B OFP OPEN FRAME PORCH 16 square feet
CUNFIN BSMT BASEMENT UNFINISHED 1SMAS MASONRY 150 square feet
D MA STOOP/TERR MAS STOOP 92 square feet
EUNFIN BSMT BASEMENT UNFINISHED MABAY MASONRY BAY 20 square feet
FUNFIN BSMT BASEMENT UNFINISHED 1SMAS MASONRY 135 square feet
GUNFIN BSMT BASEMENT UNFINISHED EMP ENCL MASONRY PORCH 20 square feet

Parcel Images

parcel photo