Elected Officials
Courts
Departments
Initiatives
Open Government
About
Login / Register
Home
/
Property & Tax Records
/
Property Records
/
Property & Tax Search
/
Parcel Profile
/
Print View
Search for Another Parcel
Parcel Profile
Historical Card
Sketches
Photos
Tax Map
Taxes
Print View
Print This Page
Address: 2924 CHESTNUT ST
Parcel: 19060049030000
Parcel Profile
Address
2924 | CHESTNUT | ST
Street Status
PAVED | SIDEWALK
School District
CITY OF ERIE SCHOOL
Acreage
0.1102
Classification
R
Land Use Code
SINGLE FAMILY
Legal Description
2924 CHESTNUT ST 40X120
Square Feet
1440
Topo
LEVEL
Utility
ALL PUBLIC
Zoning
Please contact your municipal zoning officer
Deed Book
2018
Deed Page
001469
2026 Tax Values
Land Value / Taxable
11,000 / 11,000.00
Building Value / Taxable
49,450 / 49,450.00
Total Value / Taxable
60,450 / 60,450.00
Clean & Green
Inactive
Homestead Status
Inactive
Farmstead Status
Inactive
Lerta Amount
0
Lerta Expiration Year
0
Residential Data
Card 1
Style
OLD STYLE
Basement
FULL
Year Built
1911
Exterior Wall
COMPOSITION
Total Living Area
1440
Full Baths
1
Half Baths
0
Fuel Type
GAS
Heating
CENTRAL
Heating System
FORCED AIR
Stories
2.0
Total Bedrooms
4
Total Family Rooms
0
Total Rooms
7
Fireplaces
0
Other Buildings & Yards
Description
Built
Width
Length
Area
FRAME OR CB DETACHED GARAGE
1985
22
24
528
Sales History
Sale Date
Type
Price
Book / Page
Other Info
1/23/2018
LAND & BUILDING
65000
2018 / 001469
WARRANTY/SURVIVORSHIP DEED
4/11/2008
LAND & BUILDING
98000
1487 / 1617
WARRANTY/SURVIVORSHIP DEED
12/28/2007
LAND & BUILDING
32000
1460 / 1881
DEED
9/19/2007
LAND & BUILDING
0
1448 / 0275
SHERIFF'S DED
6/12/1991
0
0164 / 0491
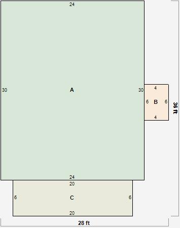
Parcel Sketches
Residential Card 1
A
MAIN
720 square feet
B
EFP ENCL FRAME PORCH
24 square feet
C
OFP OPEN FRAME PORCH
120 square feet
Parcel Images
Please note:
this tab is for informational purposes only and may not show all delinquencies, see the Taxes tab for more accurate delinquent taxes due.