Elected Officials
Courts
Departments
Initiatives
Open Government
About
Login / Register
Home
/
Property & Tax Records
/
Property Records
/
Property & Tax Search
/
Parcel Profile
/
Print View
Search for Another Parcel
Parcel Profile
Historical Card
Sketches
Photos
Tax Map
Taxes
Print View
Print This Page
Address: 2680 MYRTLE ST
Parcel: 19060050010100
Parcel Profile
Address
2680 | MYRTLE | ST
Street Status
PAVED | SIDEWALK
School District
CITY OF ERIE SCHOOL
Acreage
0.1108
Classification
R
Land Use Code
SINGLE FAMILY
Legal Description
2680 MYRTLE ST 34X142
Square Feet
1732
Topo
LEVEL
Utility
ALL PUBLIC
Zoning
Please contact your municipal zoning officer
Deed Book
2023
Deed Page
018608
2026 Tax Values
Land Value / Taxable
11,000 / 11,000.00
Building Value / Taxable
42,980 / 42,980.00
Total Value / Taxable
53,980 / 53,980.00
Clean & Green
Inactive
Homestead Status
Inactive
Farmstead Status
Inactive
Lerta Amount
0
Lerta Expiration Year
0
Residential Data
Card 1
Style
OLD STYLE
Basement
FULL
Year Built
1895
Exterior Wall
ALUMINUM/VINYL
Total Living Area
1732
Full Baths
1
Half Baths
0
Fuel Type
GAS
Heating
CENTRAL
Heating System
FORCED AIR
Stories
1.5
Total Bedrooms
3
Total Family Rooms
0
Total Rooms
7
Fireplaces
0
Other Buildings & Yards
No OBY Data Found
Sales History
Sale Date
Type
Price
Book / Page
Other Info
10/26/2023
LAND & BUILDING
120000
2023 / 018608
DEED
10/3/2017
LAND & BUILDING
79900
2017 / 021660
WARRANTY/SURVIVORSHIP DEED
8/24/2001
LAND & BUILDING
25000
804 / 7
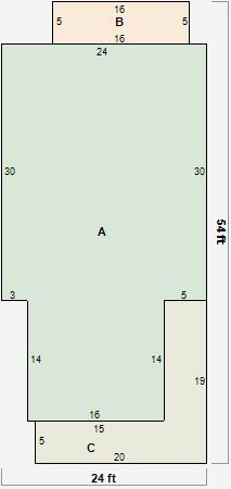
Parcel Sketches
Residential Card 1
A
MAIN
944 square feet
B
1S FR ONE STORY FRAME
80 square feet
C
OFP OPEN FRAME PORCH
170 square feet
Parcel Images
Please note:
this tab is for informational purposes only and may not show all delinquencies, see the Taxes tab for more accurate delinquent taxes due.