Elected Officials
Courts
Departments
Initiatives
Open Government
About
Login / Register
Home
/
Property & Tax Records
/
Property Records
/
Property & Tax Search
/
Parcel Profile
/
Print View
Search for Another Parcel
Parcel Profile
Historical Card
Sketches
Photos
Tax Map
Taxes
Print View
Print This Page
Address: 2668 MYRTLE ST
Parcel: 19060050010500
Parcel Profile
Address
2668 | MYRTLE | ST
Street Status
PAVED | SIDEWALK
School District
CITY OF ERIE SCHOOL
Acreage
0.1108
Classification
R
Land Use Code
SINGLE FAMILY
Legal Description
2668 MYRTLE ST 34X142
Square Feet
1948
Topo
LEVEL
Utility
ALL PUBLIC
Zoning
Please contact your municipal zoning officer
Deed Book
0610
Deed Page
2320
2026 Tax Values
Land Value / Taxable
11,000 / 11,000.00
Building Value / Taxable
14,000 / 14,000.00
Total Value / Taxable
25,000 / 25,000.00
Clean & Green
Inactive
Homestead Status
Active
Farmstead Status
Inactive
Lerta Amount
0
Lerta Expiration Year
0
Residential Data
Card 1
Style
OLD STYLE
Basement
FULL
Year Built
1897
Exterior Wall
COMPOSITION
Total Living Area
1948
Full Baths
1
Half Baths
0
Fuel Type
GAS
Heating
CENTRAL
Heating System
HOT WATER
Stories
2.0
Total Bedrooms
2
Total Family Rooms
0
Total Rooms
10
Fireplaces
0
Other Buildings & Yards
No OBY Data Found
Sales History
Sale Date
Type
Price
Book / Page
Other Info
1/7/1999
0
0610 / 2320
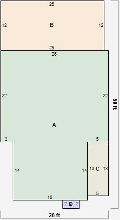
Parcel Sketches
Residential Card 1
A
MAIN
824 square feet
B
1S FR ONE STORY FRAME
300 square feet
C
OFP OPEN FRAME PORCH
65 square feet
D
MA STOOP/TERR MAS STOOP
8 square feet
Parcel Images
Please note:
this tab is for informational purposes only and may not show all delinquencies, see the Taxes tab for more accurate delinquent taxes due.