Elected Officials
Courts
Departments
Initiatives
Open Government
About
Login / Register
Home
/
Property & Tax Records
/
Property Records
/
Property & Tax Search
/
Parcel Profile
/
Print View
Search for Another Parcel
Parcel Profile
Historical Card
Sketches
Photos
Tax Map
Taxes
Print View
Print This Page
Address: 2673 COCHRAN ST
Parcel: 19060050014400
Parcel Profile
Address
2673 | COCHRAN | ST
Street Status
PAVED | SIDEWALK
School District
CITY OF ERIE SCHOOL
Acreage
0.1108
Classification
R
Land Use Code
TWO FAMILY
Legal Description
2673 COCHRAN ST 34X142
Square Feet
2536
Topo
LEVEL
Utility
ALL PUBLIC
Zoning
Please contact your municipal zoning officer
Deed Book
1009
Deed Page
1353
2026 Tax Values
Land Value / Taxable
11,000 / 11,000.00
Building Value / Taxable
55,170 / 55,170.00
Total Value / Taxable
66,170 / 66,170.00
Clean & Green
Inactive
Homestead Status
Inactive
Farmstead Status
Inactive
Lerta Amount
0
Lerta Expiration Year
0
Residential Data
Card 1
Style
OLD STYLE
Basement
FULL
Year Built
1892
Exterior Wall
ALUMINUM/VINYL
Total Living Area
2536
Full Baths
2
Half Baths
0
Fuel Type
GAS
Heating
CENTRAL
Heating System
FORCED AIR
Stories
2.0
Total Bedrooms
5
Total Family Rooms
0
Total Rooms
11
Fireplaces
0
Other Buildings & Yards
Description
Built
Width
Length
Area
FRAME OR CB DETACHED GARAGE
1946
20
24
480
Sales History
Sale Date
Type
Price
Book / Page
Other Info
5/9/2003
LAND & BUILDING
0
1009 / 1353
QUIT CLAIM DEED
7/12/1976
0
1228 / 0252
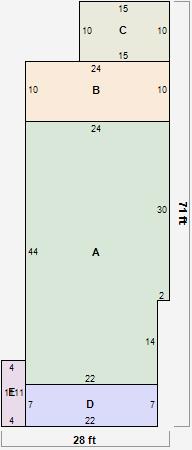
Parcel Sketches
Residential Card 1
A
MAIN
1028 square feet
B
1S FR ONE STORY FRAME 1S FR ONE STORY FRAME
240 square feet
C
EFP ENCL FRAME PORCH
150 square feet
D
UNFIN BSMT BASEMENT UNFINISHED EFP ENCL FRAME PORCH EFP ENCL FRAME PORCH
154 square feet
E
OFP OPEN FRAME PORCH
44 square feet
Parcel Images
Please note:
this tab is for informational purposes only and may not show all delinquencies, see the Taxes tab for more accurate delinquent taxes due.