Elected Officials
Courts
Departments
Initiatives
Open Government
About
Login / Register
Home
/
Property & Tax Records
/
Property Records
/
Property & Tax Search
/
Parcel Profile
/
Print View
Search for Another Parcel
Parcel Profile
Historical Card
Sketches
Photos
Tax Map
Taxes
Print View
Print This Page
Address: 336 W 29 ST
Parcel: 19060050020000
Parcel Profile
Address
336 | W | 29 | ST
Street Status
PAVED | SIDEWALK
School District
CITY OF ERIE SCHOOL
Acreage
0.0990
Classification
R
Land Use Code
TWO FAMILY
Legal Description
336 W 29TH ST 37.5X115
Square Feet
1986
Topo
LEVEL
Utility
ALL PUBLIC
Zoning
Please contact your municipal zoning officer
Deed Book
2022
Deed Page
025449
2026 Tax Values
Land Value / Taxable
10,900 / 10,900.00
Building Value / Taxable
55,900 / 55,900.00
Total Value / Taxable
66,800 / 66,800.00
Clean & Green
Inactive
Homestead Status
Inactive
Farmstead Status
Inactive
Lerta Amount
0
Lerta Expiration Year
0
Residential Data
Card 1
Style
OLD STYLE
Basement
FULL
Year Built
1922
Exterior Wall
ALUMINUM/VINYL
Total Living Area
1986
Full Baths
2
Half Baths
0
Fuel Type
GAS
Heating
CENTRAL
Heating System
FORCED AIR
Stories
2.0
Total Bedrooms
6
Total Family Rooms
0
Total Rooms
10
Fireplaces
0
Other Buildings & Yards
Description
Built
Width
Length
Area
FRAME OR CB DETACHED GARAGE
1922
20
20
400
Sales History
Sale Date
Type
Price
Book / Page
Other Info
12/5/2022
LAND & BUILDING
35000
2022 / 025449
SPECIAL WARRANTY DEED
9/19/2014
LAND & BUILDING
69472
2014 / 019962
SPECIAL WARRANTY DEED
10/5/2007
LAND & BUILDING
69000
1451 / 2371
WARRANTY/SURVIVORSHIP DEED
12/3/1998
LAND & BUILDING
190000
603 / 2272
10/23/1979
0
1368 / 0412
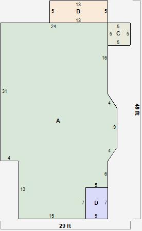
Parcel Sketches
Residential Card 1
A
MAIN
993 square feet
B
MA STOOP/TERR MAS STOOP
65 square feet
C
OFP OPEN FRAME PORCH
25 square feet
D
MA STOOP/TERR MAS STOOP
35 square feet
Parcel Images
Please note:
this tab is for informational purposes only and may not show all delinquencies, see the Taxes tab for more accurate delinquent taxes due.