Elected Officials
Courts
Departments
Initiatives
Open Government
About
Login / Register
Home
/
Property & Tax Records
/
Property Records
/
Property & Tax Search
/
Parcel Profile
/
Print View
Search for Another Parcel
Parcel Profile
Historical Card
Sketches
Photos
Tax Map
Taxes
Print View
Print This Page
Address: 2622 COCHRAN ST
Parcel: 19060050021500
Parcel Profile
Address
2622 | COCHRAN | ST
Street Status
PAVED | SIDEWALK
School District
CITY OF ERIE SCHOOL
Acreage
0.1322
Classification
R
Land Use Code
MULTIPLE DWELLINGS
Legal Description
2622 COCHRAN ST 40 X 144
Square Feet
2652
Topo
LEVEL
Utility
ALL PUBLIC
Zoning
Please contact your municipal zoning officer
Deed Book
2024
Deed Page
007744
2026 Tax Values
Land Value / Taxable
11,300 / 11,300.00
Building Value / Taxable
85,300 / 85,300.00
Total Value / Taxable
96,600 / 96,600.00
Clean & Green
Inactive
Homestead Status
Inactive
Farmstead Status
Inactive
Lerta Amount
0.00
Lerta Expiration Year
2017
Residential Data
Card 1
Style
OTHER
Basement
FULL
Year Built
1894
Exterior Wall
COMPOSITION
Total Living Area
1818
Full Baths
2
Half Baths
0
Fuel Type
GAS
Heating
CENTRAL
Heating System
FORCED AIR
Stories
1.0
Total Bedrooms
6
Total Family Rooms
0
Total Rooms
12
Fireplaces
0
Card 2
Style
OTHER
Basement
FULL
Year Built
1912
Exterior Wall
COMPOSITION
Total Living Area
834
Full Baths
1
Half Baths
0
Fuel Type
GAS
Heating
CENTRAL
Heating System
FORCED AIR
Stories
1.0
Total Bedrooms
2
Total Family Rooms
0
Total Rooms
4
Fireplaces
0
Other Buildings & Yards
No OBY Data Found
Sales History
Sale Date
Type
Price
Book / Page
Other Info
5/23/2024
LAND & BUILDING
87000
2024 / 007744
SPECIAL WARRANTY DEED
6/2/2015
LAND & BUILDING
0
2015 / 011156
QUIT CLAIM DEED
8/4/1992
0
0224 / 1550
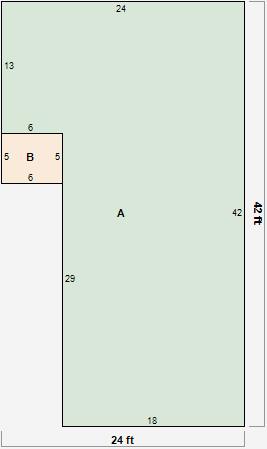
Parcel Sketches
Residential Card 1
A
MAIN
1076 square feet
B
1S FR ONE STORY FRAME
312 square feet
C
OFP OPEN FRAME PORCH
56 square feet
D
OFP OPEN FRAME PORCH
96 square feet
E
OFP OPEN FRAME PORCH
20 square feet
Residential Card 2
A
MAIN
834 square feet
B
OFP OPEN FRAME PORCH
30 square feet
Parcel Images
Please note:
this tab is for informational purposes only and may not show all delinquencies, see the Taxes tab for more accurate delinquent taxes due.