Elected Officials
Courts
Departments
Initiatives
Open Government
About
Login / Register
Home
/
Property & Tax Records
/
Property Records
/
Property & Tax Search
/
Parcel Profile
/
Print View
Search for Another Parcel
Parcel Profile
Historical Card
Sketches
Photos
Tax Map
Taxes
Print View
Print This Page
Address: 2608 COCHRAN ST
Parcel: 19060050021700
Parcel Profile
Address
2608 | COCHRAN | ST
Street Status
PAVED | SIDEWALK
School District
CITY OF ERIE SCHOOL
Acreage
0.0791
Classification
R
Land Use Code
TWO FAMILY
Legal Description
2608 COCHRAN ST 45.95 X 75
Square Feet
1728
Topo
LEVEL
Utility
ALL PUBLIC
Zoning
Please contact your municipal zoning officer
Deed Book
2019
Deed Page
011617
2026 Tax Values
Land Value / Taxable
10,300 / 10,300.00
Building Value / Taxable
59,600 / 59,600.00
Total Value / Taxable
69,900 / 69,900.00
Clean & Green
Inactive
Homestead Status
Inactive
Farmstead Status
Inactive
Lerta Amount
0
Lerta Expiration Year
0
Residential Data
Card 1
Style
OLD STYLE
Basement
FULL
Year Built
1915
Exterior Wall
BRICK
Total Living Area
1728
Full Baths
2
Half Baths
0
Fuel Type
GAS
Heating
CENTRAL
Heating System
FORCED AIR
Stories
2.0
Total Bedrooms
2
Total Family Rooms
0
Total Rooms
10
Fireplaces
0
Other Buildings & Yards
No OBY Data Found
Sales History
Sale Date
Type
Price
Book / Page
Other Info
6/19/2019
LAND & BUILDING
77000
2019 / 011617
FIDUCIARY DEED
2/9/2012
LAND & BUILDING
60000
2012 / 003573
DEED
3/3/1977
0
1254 / 0402
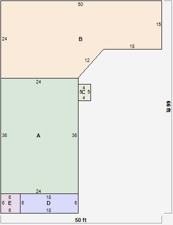
Parcel Sketches
Residential Card 1
A
MAIN
864 square feet
B
FR GR FRAME GARAGE
1002 square feet
C
MA STOOP/TERR MAS STOOP
20 square feet
D
OMP OPEN MASONRY PORCH OFP OPEN FRAME PORCH
108 square feet
E
OMP OPEN MASONRY PORCH
36 square feet
Parcel Images
Please note:
this tab is for informational purposes only and may not show all delinquencies, see the Taxes tab for more accurate delinquent taxes due.