Elected Officials
Courts
Departments
Initiatives
Open Government
About
Login / Register
Home
/
Property & Tax Records
/
Property Records
/
Property & Tax Search
/
Parcel Profile
/
Print View
Search for Another Parcel
Parcel Profile
Historical Card
Sketches
Photos
Tax Map
Taxes
Print View
Print This Page
Address: 2625 CHESTNUT ST
Parcel: 19060050023000
Parcel Profile
Address
2625 | CHESTNUT | ST
Street Status
PAVED | SIDEWALK
School District
CITY OF ERIE SCHOOL
Acreage
0.1322
Classification
R
Land Use Code
MULTIPLE DWELLINGS
Legal Description
2625 CHESTNUT ST 40 X 144
Square Feet
3262
Topo
LEVEL
Utility
ALL PUBLIC
Zoning
Please contact your municipal zoning officer
Deed Book
2021
Deed Page
027723
2026 Tax Values
Land Value / Taxable
11,300 / 11,300.00
Building Value / Taxable
78,000 / 78,000.00
Total Value / Taxable
89,300 / 89,300.00
Clean & Green
Inactive
Homestead Status
Inactive
Farmstead Status
Inactive
Lerta Amount
0
Lerta Expiration Year
0
Residential Data
Card 1
Style
OLD STYLE
Basement
FULL
Year Built
1887
Exterior Wall
ALUMINUM/VINYL
Total Living Area
1918
Full Baths
2
Half Baths
0
Fuel Type
GAS
Heating
CENTRAL
Heating System
FORCED AIR
Stories
1.5
Total Bedrooms
2
Total Family Rooms
0
Total Rooms
8
Fireplaces
0
Card 2
Style
OLD STYLE
Basement
FULL
Year Built
1912
Exterior Wall
ALUMINUM/VINYL
Total Living Area
1344
Full Baths
1
Half Baths
0
Fuel Type
GAS
Heating
CENTRAL
Heating System
FORCED AIR
Stories
2.0
Total Bedrooms
2
Total Family Rooms
0
Total Rooms
6
Fireplaces
0
Other Buildings & Yards
No OBY Data Found
Sales History
Sale Date
Type
Price
Book / Page
Other Info
10/15/2021
LAND & BUILDING
0
2021 / 027723
QUIT CLAIM DEED
1/10/2020
LAND & BUILDING
48000
2020 / 000634
SPECIAL WARRANTY DEED
11/8/2019
LAND & BUILDING
30000
2019 / 023086
SHERIFF'S DED
12/1/1997
0
0531 / 1888
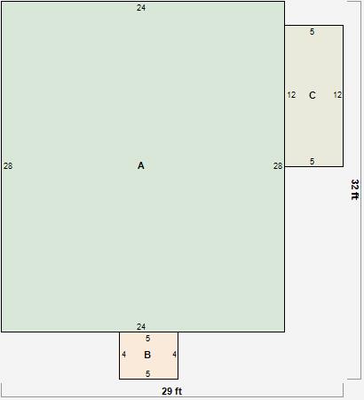
Parcel Sketches
Residential Card 1
A
MAIN
1048 square feet
B
OFP OPEN FRAME PORCH
84 square feet
C
OFP OPEN FRAME PORCH
18 square feet
D
UNFIN BSMT BASEMENT UNFINISHED 1S FR ONE STORY FRAME
84 square feet
Residential Card 2
A
MAIN
672 square feet
B
WDDCK WOOD DECKS
20 square feet
C
EFP ENCL FRAME PORCH
60 square feet
Parcel Images
Please note:
this tab is for informational purposes only and may not show all delinquencies, see the Taxes tab for more accurate delinquent taxes due.