Elected Officials
Courts
Departments
Initiatives
Open Government
About
Login / Register
Home
/
Property & Tax Records
/
Property Records
/
Property & Tax Search
/
Parcel Profile
/
Print View
Search for Another Parcel
Parcel Profile
Historical Card
Sketches
Photos
Tax Map
Taxes
Print View
Print This Page
Address: 358 W 29 ST
Parcel: 19060050024500
Parcel Profile
Address
358 | W | 29 | ST
Street Status
PAVED | SIDEWALK
School District
CITY OF ERIE SCHOOL
Acreage
0.0990
Classification
R
Land Use Code
SINGLE FAMILY
Legal Description
358 W 29 ST 37.5X115
Square Feet
1531
Topo
LEVEL
Utility
ALL PUBLIC
Zoning
Please contact your municipal zoning officer
Deed Book
0111
Deed Page
0384
2026 Tax Values
Land Value / Taxable
10,900 / 10,900.00
Building Value / Taxable
49,640 / 49,640.00
Total Value / Taxable
60,540 / 60,540.00
Clean & Green
Inactive
Homestead Status
Inactive
Farmstead Status
Inactive
Lerta Amount
0
Lerta Expiration Year
0
Residential Data
Card 1
Style
OLD STYLE
Basement
FULL
Year Built
1903
Exterior Wall
ALUMINUM/VINYL
Total Living Area
1531
Full Baths
2
Half Baths
0
Fuel Type
GAS
Heating
NON CENTRAL
Heating System
NONE
Stories
2.0
Total Bedrooms
3
Total Family Rooms
0
Total Rooms
7
Fireplaces
0
Other Buildings & Yards
No OBY Data Found
Sales History
Sale Date
Type
Price
Book / Page
Other Info
1/24/1990
0
0111 / 0384
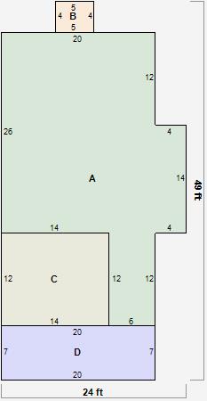
Parcel Sketches
Residential Card 1
A
MAIN
648 square feet
B
EFP ENCL FRAME PORCH
20 square feet
C
UNFIN BSMT BASEMENT UNFINISHED 1S FR ONE STORY FRAME AT FN ATTIC-FINISHED
168 square feet
D
OFP OPEN FRAME PORCH
140 square feet
Parcel Images
Please note:
this tab is for informational purposes only and may not show all delinquencies, see the Taxes tab for more accurate delinquent taxes due.