Elected Officials
Courts
Departments
Initiatives
Open Government
About
Login / Register
Home
/
Property & Tax Records
/
Property Records
/
Property & Tax Search
/
Parcel Profile
/
Print View
Search for Another Parcel
Parcel Profile
Historical Card
Sketches
Photos
Tax Map
Taxes
Print View
Print This Page
Address: 356 W 29 ST
Parcel: 19060050024600
Parcel Profile
Address
356 | W | 29 | ST
Street Status
PAVED | SIDEWALK
School District
CITY OF ERIE SCHOOL
Acreage
0.0990
Classification
R
Land Use Code
SINGLE FAMILY
Legal Description
356 W 29TH ST 37.5 X 115
Square Feet
1573
Topo
LEVEL
Utility
ALL PUBLIC
Zoning
Please contact your municipal zoning officer
Deed Book
1156
Deed Page
0034
2026 Tax Values
Land Value / Taxable
10,900 / 10,900.00
Building Value / Taxable
45,160 / 45,160.00
Total Value / Taxable
56,060 / 56,060.00
Clean & Green
Inactive
Homestead Status
Active
Farmstead Status
Inactive
Lerta Amount
0
Lerta Expiration Year
0
Residential Data
Card 1
Style
OLD STYLE
Basement
FULL
Year Built
1903
Exterior Wall
COMPOSITION
Total Living Area
1573
Full Baths
1
Half Baths
1
Fuel Type
GAS
Heating
CENTRAL
Heating System
FORCED AIR
Stories
2.0
Total Bedrooms
4
Total Family Rooms
0
Total Rooms
8
Fireplaces
0
Other Buildings & Yards
No OBY Data Found
Sales History
Sale Date
Type
Price
Book / Page
Other Info
6/12/1975
0
1156 / 0034
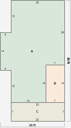
Parcel Sketches
Residential Card 1
A
MAIN
718 square feet
B
UNFIN BSMT BASEMENT UNFINISHED 1S FR ONE STORY FRAME AT FN ATTIC-FINISHED
98 square feet
C
OFP OPEN FRAME PORCH
140 square feet
Parcel Images
Please note:
this tab is for informational purposes only and may not show all delinquencies, see the Taxes tab for more accurate delinquent taxes due.