Elected Officials
Courts
Departments
Initiatives
Open Government
About
Login / Register
Home
/
Property & Tax Records
/
Property Records
/
Property & Tax Search
/
Parcel Profile
/
Print View
Search for Another Parcel
Parcel Profile
Historical Card
Sketches
Photos
Tax Map
Taxes
Print View
Print This Page
Address: 2906 MYRTLE ST
Parcel: 19060051010900
Parcel Profile
Address
2906 | MYRTLE | ST
Street Status
PAVED | SIDEWALK
School District
CITY OF ERIE SCHOOL
Acreage
0.1119
Classification
R
Land Use Code
SINGLE FAMILY
Legal Description
2906 MYRTLE ST 32.5 X 150
Square Feet
1987
Topo
LEVEL
Utility
ALL PUBLIC
Zoning
Please contact your municipal zoning officer
Deed Book
2013
Deed Page
008016
2026 Tax Values
Land Value / Taxable
11,000 / 11,000.00
Building Value / Taxable
47,150 / 47,150.00
Total Value / Taxable
58,150 / 58,150.00
Clean & Green
Inactive
Homestead Status
Active
Farmstead Status
Inactive
Lerta Amount
0
Lerta Expiration Year
0
Residential Data
Card 1
Style
BUNGALOW
Basement
FULL
Year Built
1892
Exterior Wall
COMPOSITION
Total Living Area
1987
Full Baths
1
Half Baths
0
Fuel Type
GAS
Heating
CENTRAL
Heating System
FORCED AIR
Stories
1.0
Total Bedrooms
3
Total Family Rooms
0
Total Rooms
8
Fireplaces
0
Other Buildings & Yards
No OBY Data Found
Sales History
Sale Date
Type
Price
Book / Page
Other Info
4/5/2013
LAND & BUILDING
51000
2013 / 008016
DEED
6/10/1996
0
0444 / 1312
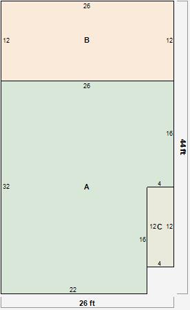
Parcel Sketches
Residential Card 1
A
MAIN
768 square feet
B
1S FR ONE STORY FRAME
312 square feet
C
OFP OPEN FRAME PORCH
48 square feet
Parcel Images
Please note:
this tab is for informational purposes only and may not show all delinquencies, see the Taxes tab for more accurate delinquent taxes due.