Elected Officials
Courts
Departments
Initiatives
Open Government
About
Login / Register
Home
/
Property & Tax Records
/
Property Records
/
Property & Tax Search
/
Parcel Profile
/
Print View
Search for Another Parcel
Parcel Profile
Historical Card
Sketches
Photos
Tax Map
Taxes
Print View
Print This Page
Address: 356 W 31 ST
Parcel: 19060051023400
Parcel Profile
Address
356 | W | 31 | ST
Street Status
PAVED | SIDEWALK
School District
CITY OF ERIE SCHOOL
Acreage
0.0826
Classification
R
Land Use Code
SINGLE FAMILY
Legal Description
356 W 31 ST 40X90
Square Feet
1544
Topo
LEVEL
Utility
ALL PUBLIC
Zoning
Please contact your municipal zoning officer
Deed Book
2022
Deed Page
011388
2026 Tax Values
Land Value / Taxable
10,400 / 10,400.00
Building Value / Taxable
67,430 / 67,430.00
Total Value / Taxable
77,830 / 77,830.00
Clean & Green
Inactive
Homestead Status
Active
Farmstead Status
Inactive
Lerta Amount
0
Lerta Expiration Year
0
Residential Data
Card 1
Style
OLD STYLE
Basement
FULL
Year Built
1920
Exterior Wall
ALUMINUM/VINYL
Total Living Area
1544
Full Baths
1
Half Baths
0
Fuel Type
GAS
Heating
CENTRAL
Heating System
FORCED AIR
Stories
2.0
Total Bedrooms
3
Total Family Rooms
0
Total Rooms
6
Fireplaces
0
Other Buildings & Yards
Description
Built
Width
Length
Area
FRAME OR CB DETACHED GARAGE
1920
12
18
216
Sales History
Sale Date
Type
Price
Book / Page
Other Info
5/27/2022
LAND & BUILDING
87900
2022 / 011388
SPECIAL WARRANTY DEED
3/4/2003
LAND & BUILDING
70000
0982 / 0898
2/10/1949
0
0533 / 0223
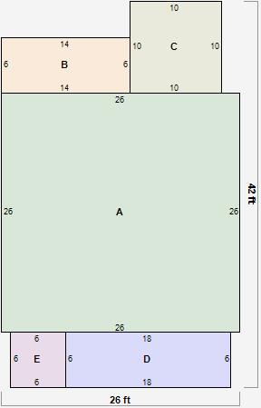
Parcel Sketches
Residential Card 1
A
MAIN
676 square feet
B
1S FR ONE STORY FRAME
84 square feet
C
WDDCK WOOD DECKS
100 square feet
D
1S FR ONE STORY FRAME
108 square feet
E
OFP OPEN FRAME PORCH
36 square feet
Parcel Images
Please note:
this tab is for informational purposes only and may not show all delinquencies, see the Taxes tab for more accurate delinquent taxes due.